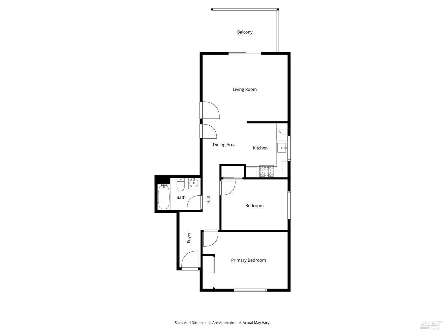
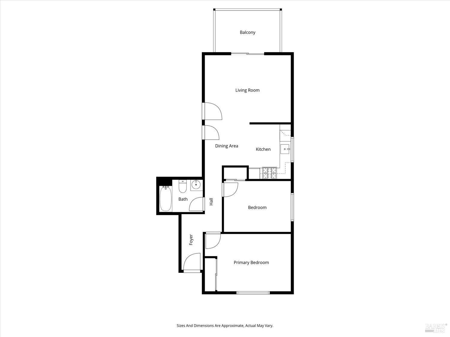
Attention Investors!!! This marina and waterfront view fourplex delivers a strong 10.25 CAP rate with four spacious 2 bedroom 1 bath units, each offering approximately 860 square feet and large balconies overlooking the water and marina. Located just minutes from freeway access, the Yacht Club, and the Ferry Building, this property is ideal for Bay Area commuters and benefits from strong market rents, additional garage income, and on site coin operated laundry that produces consistent monthly cash flow. Major capital improvements include a new roof and gutters in 2022, updated plumbing, separate 2022 water heaters and utility lines for each unit, fully rebuilt and permitted balconies, updated patio doors, partial dual pane windows, and modernized interiors featuring laminate flooring, fresh interior paint, updated kitchens and bathrooms, and stainless steel appliances 2022 or newer. A detached rear parking garage provides one dedicated space per unit, while the included coin operated washer and dryer further boosts income. Mature fruit trees including nectarines, plums, figs, apricot and orange, along with no side neighbor and beautifully landscaped stairways, create a private and relaxing setting, making this a rare opportunity to acquire a waterfront fourplex with strong cash f
MLS #
BA326007288
MLS Source
Bay Area Real Estate Information Services, Inc.
Days on Site
1
Appliances
Dishwasher, Microwave, Oven Range - Gas
Flooring
Laminate, Tile, Varies by Unit
Laundry
Coin Operated
Cooling
Ceiling Fan, Varies by Unit
Heating
Wall Furnace
Roof
Composition
Garage/Parking
Detached, Garage, Off-Street Parking, Garage: 4 Car(s)
Sewer
Public Sewer
Water
Public
HOA Fee
$0
| # Buildings | # Leased Units | # Total Units |
|---|---|---|
| 1 | 1 | 4 |
| Unit # | Sq Ft | Beds | Baths | Rent |
|---|---|---|---|---|
| 1 | 860 | 1 | 1/0 | $2,350 |
| 2 | 860 | 2 | 1/0 | $2,350 |
| 3 | 860 | 2 | 1/0 | $2,350 |
| 4 | 860 | 2 | 1/0 | $1,000 |
144 Florida St is a Residential Income in Vallejo, CA 94590. This 3,440 square foot property sits on a 6,499 Sq Ft Lot and features – bedrooms & – full bathrooms. It is currently priced at $899,900 and was built in 1984. This address can also be written as 144 Florida St, Vallejo, CA 94590.
©2026 Bay Area Real Estate Information Services, Inc. All rights reserved. All data, including all measurements and calculations of area, is obtained from various sources and has not been, and will not be, verified by broker or MLS. All information should be independently reviewed and verified for accuracy. Properties may or may not be listed by the office/agent presenting the information. Information provided is for personal, non-commercial use by the viewer and may not be redistributed without explicit authorization from Bay Area Real Estate Information Services, Inc.
Presently MLSListings.com displays Active, Contingent, Pending, and Recently Sold listings. Recently Sold listings are properties which were sold within the last three years. After that period listings are no longer displayed in MLSListings.com. Pending listings are properties under contract and no longer available for sale. Contingent listings are properties where there is an accepted offer, and seller may be seeking back-up offers. Active listings are available for sale.
This listing information is up-to-date as of February 02, 2026. For the most current information, please contact Thomas Rapisarda, (707) 592-2852