Welcome to this charming 3-bedroom, 1-bath home located in Willits, offering thoughtful upgrades and exciting future potential. The home features freshly updated interior and exterior paint, creating a clean, move-in-ready feel throughout. Recent improvements include the addition of central heat and air conditioning, with updated electrical to support the HVAC system, new attic insulation, a range hood over the stove, and gutters, enhancing both comfort and efficiency. The property also benefits from owned solar, helping keep energy costs low. Situated on an extra-large corner lot, the property offers exceptional flexibility, with the early stages of an ADU conversion already underwayan excellent opportunity for additional living space, rental income, or multi-generational living (buyer to verify). With its combination of modern upgrades, generous lot size, and future expansion potential, this Willits home is a standout opportunity you won't want to miss.
MLS #
BA325104648
MLS Source
Bay Area Real Estate Information Services, Inc.
Days on Site
1
Appliances
Other, Refrigerator
Fireplace
Family Room
Flooring
Laminate
Laundry
Other
Cooling
Ceiling Fan, Central Forced Air
Heating
Central Forced Air, Solar
Pool
Pool - No
Garage/Parking
RV Possible, Garage: 0 Car(s)
Sewer
Public Sewer
Water
Public
Listing Agent
Christina Yates
Luxe Places International Realty
License #: 01933788
Phone: (707) 391-3800
Co-Listing Agent
Lia Patterson
Luxe Places International Realty
License #: 01828367
Phone: (707) 391-5420
| # Buildings | # Leased Units | # Total Units |
|---|---|---|
| 0 | – | – |
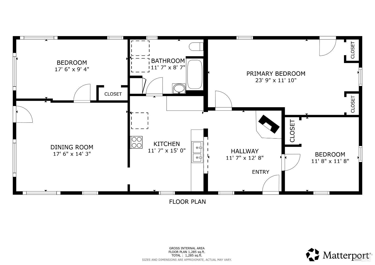
309 E Valley St is a Single Family Residence in Willits, CA 95490. This 1,285 square foot property sits on a 7,018 Sq Ft Lot and features 3 bedrooms & 1 full bathrooms. It is currently priced at $379,000 and was built in 1940. This address can also be written as 309 E Valley St, Willits, CA 95490.
©2026 Bay Area Real Estate Information Services, Inc. All rights reserved. All data, including all measurements and calculations of area, is obtained from various sources and has not been, and will not be, verified by broker or MLS. All information should be independently reviewed and verified for accuracy. Properties may or may not be listed by the office/agent presenting the information. Information provided is for personal, non-commercial use by the viewer and may not be redistributed without explicit authorization from Bay Area Real Estate Information Services, Inc.
Presently MLSListings.com displays Active, Contingent, Pending, and Recently Sold listings. Recently Sold listings are properties which were sold within the last three years. After that period listings are no longer displayed in MLSListings.com. Pending listings are properties under contract and no longer available for sale. Contingent listings are properties where there is an accepted offer, and seller may be seeking back-up offers. Active listings are available for sale.
This listing information is up-to-date as of January 09, 2026. For the most current information, please contact Christina Yates, (707) 391-3800