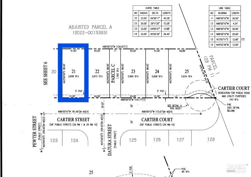
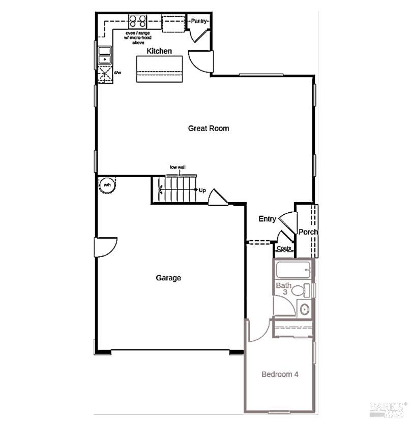
Under Construction - This inviting two-story home features 9-ft. ceilings and a spacious great room that creates a bright, open, and welcoming atmosphere. The main level includes a versatile den and powder room, or an optional 4th bedroom and full bath. The modern kitchen is designed for both function and style, offering a central island for extra prep space and casual dining, along with a pantry for ample storage. Upstairs, a loft provides additional living space, while a dedicated laundry room adds everyday convenience. The primary suite serves as a relaxing retreat, highlighted by an oversized walk-in closet. Energy-efficient features include low-E windows, WaterSense® fixtures, a smart thermostat, an electric water heater, and Whirlpool® appliances. With construction still underway, you'll have a limited-time opportunity to personalize and select design features such as cabinetry, countertops, flooring, and bath options to reflect their personal style. Located in Serrano at Watson Ranch, this thoughtfully planned community offers parks, trails, a future town center, and a planned elementary school, along with convenient access to Napa Valley Wine Country, outdoor recreation, dining, and major highways.
MLS #
BA325103095
MLS Source
Bay Area Real Estate Information Services, Inc.
Days on Site
2
Laundry
In Laundry Room
Cooling
Central Forced Air
Heating
Central Forced Air
Pool
Pool - No
Garage/Parking
Attached Garage, Garage: 2 Car(s)
Sewer
Public Sewer
Water
Public
HOA Fee
$165
HOA Fee Frequency
Monthly
Complex Amenities
Other
| # Buildings | # Leased Units | # Total Units |
|---|---|---|
| 0 | – | – |
192 Cartier St is a Single Family Residence in American Canyon, CA 94503. This 2,088 square foot property sits on a 3,608 Sq Ft Lot and features 3 bedrooms & 2 full and 1 partial bathrooms. It is currently priced at $762,000 and was built in 0. This address can also be written as 192 Cartier St, American Canyon, CA 94503.
©2025 Bay Area Real Estate Information Services, Inc. All rights reserved. All data, including all measurements and calculations of area, is obtained from various sources and has not been, and will not be, verified by broker or MLS. All information should be independently reviewed and verified for accuracy. Properties may or may not be listed by the office/agent presenting the information. Information provided is for personal, non-commercial use by the viewer and may not be redistributed without explicit authorization from Bay Area Real Estate Information Services, Inc.
Presently MLSListings.com displays Active, Contingent, Pending, and Recently Sold listings. Recently Sold listings are properties which were sold within the last three years. After that period listings are no longer displayed in MLSListings.com. Pending listings are properties under contract and no longer available for sale. Contingent listings are properties where there is an accepted offer, and seller may be seeking back-up offers. Active listings are available for sale.
This listing information is up-to-date as of December 15, 2025. For the most current information, please contact Daniel Zwicker, (510) 719-4321