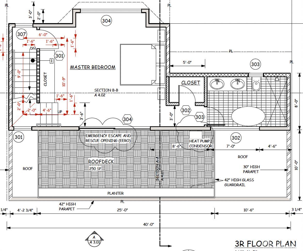
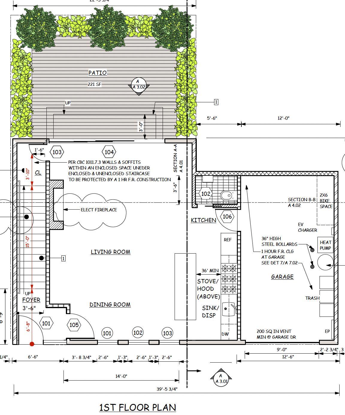
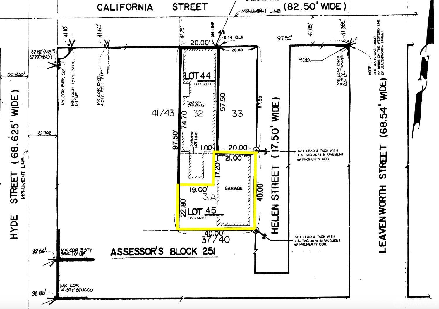
Approved plans ready to be picked up from DBI! (per seller) | One Helen St offers its next owner the opportunity to build a spectacular, brand new single family home in one of San Francisco's most coveted neighborhoods, Nob Hill. The current parcel consists of a vacant 4-car garage, and the approved plans call to demolish the garage and erect a 4 story, 2,492 sq. ft., 3 bedroom, 3 full bathroom, 2 powder room (per approved plans) single family home. The four levels will consist of: 1st level - ground floor entrance, on Helen St: great room (kitchen/ living/dining) opening onto the rear garden, plus powder room and garage; 2nd level - bedroom #1 with ensuite bathroom & walk-in closet, workout room with ensuite bathroom, and laundry; 3rd level - primary ensuite bedroom #2 with 2 closets (one walk-in), and patio attached facing Helen St; 4th level - bedroom #3, powder room, and terrace. Incredible and walkable location on Nob Hill in the heart of San Francisco with a 99 Walk Score and a 100 Transit Score. Daily errands are simple with staples such as Whole Foods Market and Trader Joe's just around the corner. Local cafes and restaurants dot Hyde St, and world-class shopping in Union Square is easily accessible. The Embarcadero waterfront, Pacific Heights, and theatres are all just m
MLS #
SF426106542
MLS Source
San Francisco Association of Realtors® MLS
Days on Site
11
# Buildings / # Units
0 / 0
Parking Spaces
4
Present Use
Mixed
Listing Agent
Frank Nolan
Vanguard Properties
License #: 01300017
Phone: (415) 377-3726
Co-Listing Agent
Massimo Loporto
Vanguard Properties
License #: 01898225
Phone: (415) 572-6508
| # Buildings | # Leased Units | # Total Units |
|---|---|---|
| 0 | – | 0 |
1 Helen St is a Commercial Sale in San Francisco, CA 94109. This 0 square foot property sits on a 1,271 Sq Ft Lot and features – bedrooms & – full bathrooms. It is currently priced at $1,099,000 and was built in 0. This address can also be written as 1 Helen St, San Francisco, CA 94109.
©2026 San Francisco Association of Realtors® MLS. All rights reserved. All data, including all measurements and calculations of area, is obtained from various sources and has not been, and will not be, verified by broker or MLS. All information should be independently reviewed and verified for accuracy. Properties may or may not be listed by the office/agent presenting the information. Information provided is for personal, non-commercial use by the viewer and may not be redistributed without explicit authorization from San Francisco Association of Realtors® MLS.
Presently MLSListings.com displays Active, Contingent, Pending, and Recently Sold listings. Recently Sold listings are properties which were sold within the last three years. After that period listings are no longer displayed in MLSListings.com. Pending listings are properties under contract and no longer available for sale. Contingent listings are properties where there is an accepted offer, and seller may be seeking back-up offers. Active listings are available for sale.
This listing information is up-to-date as of March 02, 2026. For the most current information, please contact Frank Nolan, (415) 377-3726