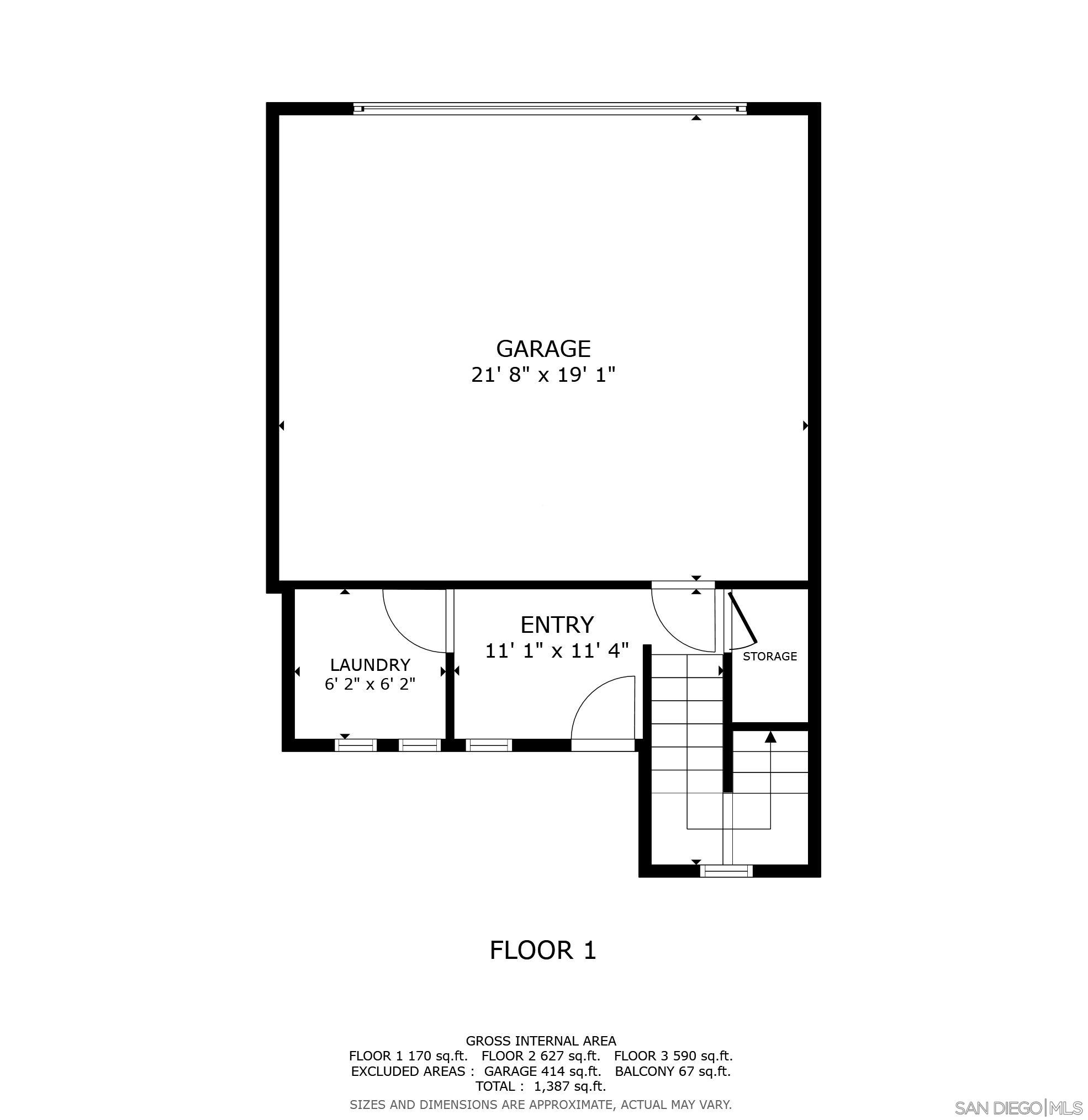
BRAND NEW 2024 CONSTRUCTION. Welcome to Golden Avenue, your Golden opportunity to buy a brand new home! A functional floor plan offers a two car, direct-entry garage with laundry hookups and a patio/deck space on all three levels. As you enter through the garage you are greeted with a separate storage room and full bathroom. The main floor includes your fully equipped kitchen featuring stainless steel appliances, quartz countertops, modern cabinetry and a pantry. On your main level you also have a spacious living and dining area as well as one bedroom and one full bathroom. As you make your way to the top floor you will fall in love with your expansive primary bedroom featuring a private deck, dual vanity and walk in closet. Additional 3rd bedroom and full 3rd bathroom on the top floor as well. If you're looking for a quiet neighborhood but still want the convenience of a short drive to downtown San Diego and the beautiful beaches this home is for you! Additional features include stunning views, low HOA, dual pane windows, recessed lighting, carpet and luxury vinyl plank flooring throughout. Buyer's also have the ability to select builder upgrades to put their own personal touch on their new home before they move in.
MLS #
SD2600451
MLS Source
San Diego MLS
Days on Site
1
Kitchen
Other
Appliances
Dishwasher, Garbage Disposal, Microwave, Other
Laundry
Hookup - Gas Dryer, In Laundry Room
Cooling
Other, Window/Wall Unit
Heating
Gas - Natural, Other
Roof
Rolled/Hot Mop
Pool
Other
Garage/Parking
Attached Garage, Garage: 2 Car(s)
HOA Fee
$290
HOA Fee Frequency
Monthly
Zoning
R-4:MULTIP
8160 Golden Ave is a Townhouse in Lemon Grove, CA 91945. This 1,401 square foot property sits on a 0.76 Acres Lot and features 3 bedrooms & 3 full and 1 partial bathrooms. It is currently priced at $605,000 and was built in 2024. This address can also be written as 8160 Golden Ave, Lemon Grove, CA 91945.
©2026 San Diego MLS. All rights reserved. All data, including all measurements and calculations of area, is obtained from various sources and has not been, and will not be, verified by broker or MLS. All information should be independently reviewed and verified for accuracy. Properties may or may not be listed by the office/agent presenting the information. Information provided is for personal, non-commercial use by the viewer and may not be redistributed without explicit authorization from San Diego MLS.
Presently MLSListings.com displays Active, Contingent, Pending, and Recently Sold listings. Recently Sold listings are properties which were sold within the last three years. After that period listings are no longer displayed in MLSListings.com. Pending listings are properties under contract and no longer available for sale. Contingent listings are properties where there is an accepted offer, and seller may be seeking back-up offers. Active listings are available for sale.
This listing information is up-to-date as of January 07, 2026. For the most current information, please contact Christian Meno, (619) 906-1683