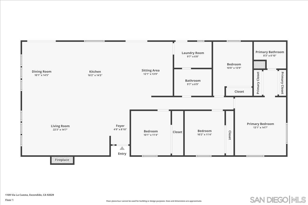
This beautifully updated single-level ranch home is privately situated on a fully gated and cross-fenced three-quarter acre lot in desirable South Escondido. Surrounded by mature landscaping and established fruit trees, the property offers exceptional privacy along with exciting potential for a future ADU. Designed to capture its breathtaking surroundings, the home showcases stunning views of both Palomar Mountain and Laguna Mountain through expansive floor-to-ceiling windows that flood the interior with natural light. The remodeled kitchen is both stylish and functional, featuring quartz countertops, a striking oversized concrete island, stainless steel appliances, white soft-close cabinetry, and an open layout that seamlessly connects to the living and dining areas. The inviting living room offers a cozy fireplace and comfortable sitting area just off the kitchen, ideal for everyday living and entertaining. Sliding glass doors open to a spacious paver patio with outdoor lighting, creating a perfect setting for gatherings or quiet evenings enjoying the mountain views. The home offers four bedrooms and two remodeled bathrooms, with one bedroom ideally suited for an office or flexible use. An indoor laundry room is conveniently located near the bedrooms for everyday ease. Addition
MLS #
SD260004466
MLS Source
San Diego MLS
Days on Site
20
Appliances
Dishwasher, Garbage Disposal
Fireplace
Family Room
Laundry
Hookups Only, In Laundry Room
Cooling
Central Forced Air
Heating
Fireplace, Forced Air, Gas - Natural
Roof
Composition
Pool
Other
Garage/Parking
Attached Garage, Other, Garage: 2 Car(s)
HOA Fee
$0
Zoning
R-1:SINGLE
Listing Agent
Shannon Dempsey
AllView Real Estate
License #: 01935676
Phone: (951) 764-5606
Co-Listing Agent
Connie Malkiewicz
Brush Real Estate Services Inc
License #: 01495749
Phone: (760) 497-2593
1109 via La Cuesta is a Single Family Residence in Escondido, CA 92029. This 2,070 square foot property sits on a 0.74 Acres Lot and features 4 bedrooms & 2 full bathrooms. It is currently priced at $1,176,500 and was built in 1970. This address can also be written as 1109 via La Cuesta, Escondido, CA 92029.
©2026 San Diego MLS. All rights reserved. All data, including all measurements and calculations of area, is obtained from various sources and has not been, and will not be, verified by broker or MLS. All information should be independently reviewed and verified for accuracy. Properties may or may not be listed by the office/agent presenting the information. Information provided is for personal, non-commercial use by the viewer and may not be redistributed without explicit authorization from San Diego MLS.
Presently MLSListings.com displays Active, Contingent, Pending, and Recently Sold listings. Recently Sold listings are properties which were sold within the last three years. After that period listings are no longer displayed in MLSListings.com. Pending listings are properties under contract and no longer available for sale. Contingent listings are properties where there is an accepted offer, and seller may be seeking back-up offers. Active listings are available for sale.
This listing information is up-to-date as of March 09, 2026. For the most current information, please contact Shannon Dempsey, (951) 764-5606