Welcome to a rare coastal treasure in the heart of Ocean Beach, where timeless character meets thoughtful modern design just two blocks from the sand. This early-century beach bungalow has been beautifully reimagined while preserving the soul and original charm that define a classic OB cottage, showcasing vintage architectural details. Situated on an expansive double lot, this property comes with two separate buildable lots with their own APNs. The property offers exceptional outdoor space rarely found this close to the ocean, with fully finished, low-maintenance turf yards, concrete pads, a fenced front yard, and a storybook front porch that create a private retreat, with outdoor living enhanced by a covered patio and an above-ground spa. The property also features a one-car detached garage and motorized security gate, both equipped with exterior electronic digital keypads and remote controls for convenient alleyway access. In addition to the garage, the gated entry provides extra secured off-street parking that can accommodate two vehicles and is equipped with an EV charger. Inside, the bungalow has been recently updated throughout, highlighted by an open renovated kitchen, remodeled bathrooms, LVP flooring, a tankless water heater, three mini-split systems, ceiling fans, and a
MLS #
SD260003236
MLS Source
San Diego MLS
Days on Site
4
Kitchen
Other
Appliances
Dishwasher, Microwave, Other, Oven Range - Gas, Refrigerator, Dryer, Washer
Fireplace
Other
Flooring
Vinyl
Laundry
Hookup - Electric, Hookup - Gas Dryer, In Closet, Stacked Only
Cooling
Ceiling Fan, Central Forced Air - Electric, Multi-Zone
Heating
Electric, Floor Furnace, Other
Roof
Composition
Pool
Other, Spa - Private
Style
Bungalow, Cottage
Garage/Parking
Detached, Garage, Gate/Door Opener, Other, Garage: 1 Car(s)
HOA Fee
$0
Zoning
R-1:SINGLE
Listing Agent
Joel Blumenfeld
Compass
License #: 01889382
Phone: (619) 508-2192
Co-Listing Agent
Paris Dixon
Compass
License #: 02114072
Phone: (619) 919-2488
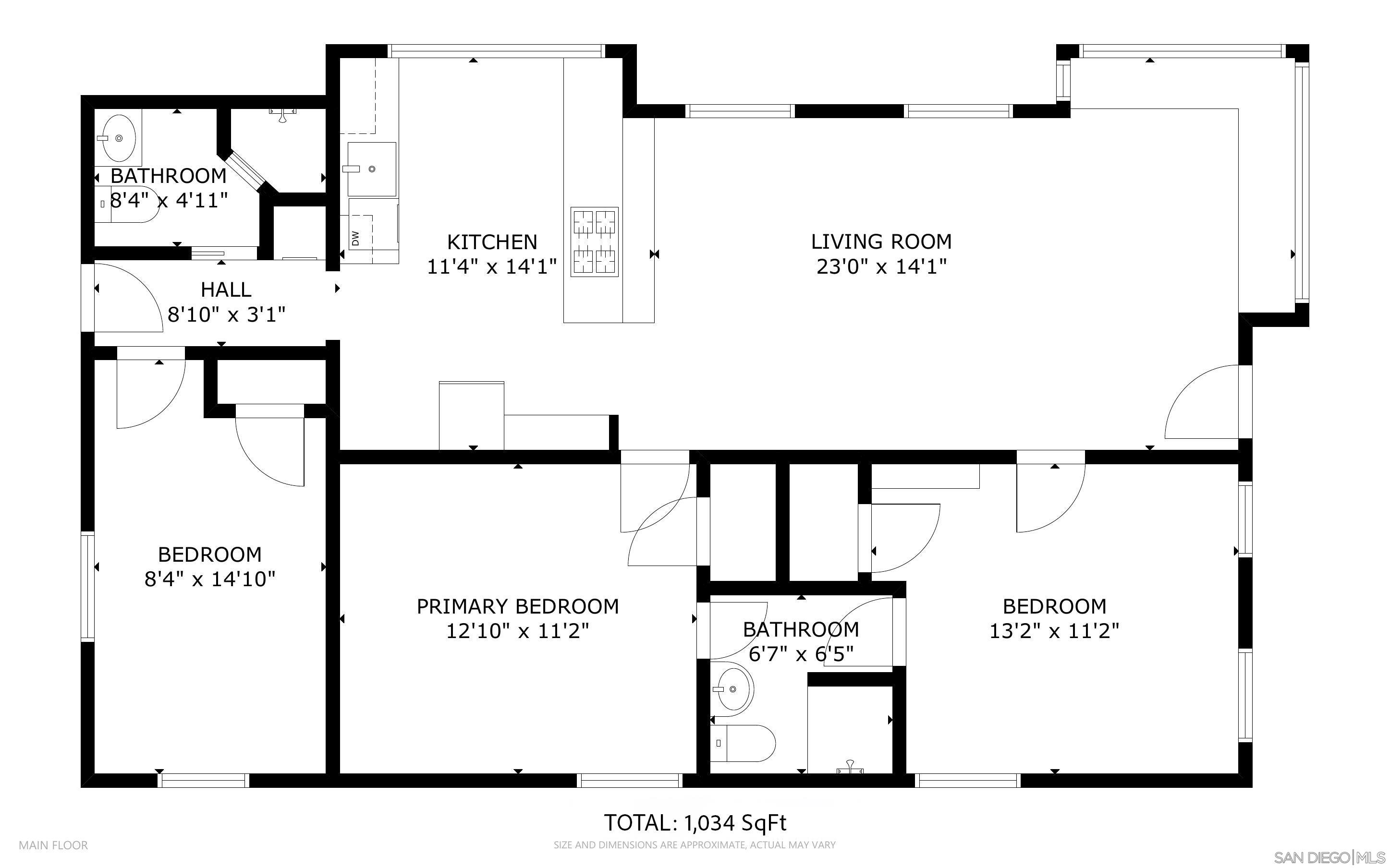
4963 Long Branch Ave is a Single Family Residence in San Diego, CA 92107. This 1,034 square foot property sits on a 5,186 Sq Ft Lot and features 3 bedrooms & 2 full bathrooms. It is currently priced at $1,695,000 and was built in 1922. This address can also be written as 4963 Long Branch Ave, San Diego, CA 92107.
©2026 San Diego MLS. All rights reserved. All data, including all measurements and calculations of area, is obtained from various sources and has not been, and will not be, verified by broker or MLS. All information should be independently reviewed and verified for accuracy. Properties may or may not be listed by the office/agent presenting the information. Information provided is for personal, non-commercial use by the viewer and may not be redistributed without explicit authorization from San Diego MLS.
Presently MLSListings.com displays Active, Contingent, Pending, and Recently Sold listings. Recently Sold listings are properties which were sold within the last three years. After that period listings are no longer displayed in MLSListings.com. Pending listings are properties under contract and no longer available for sale. Contingent listings are properties where there is an accepted offer, and seller may be seeking back-up offers. Active listings are available for sale.
This listing information is up-to-date as of February 11, 2026. For the most current information, please contact Joel Blumenfeld, (619) 508-2192