Home | Santa Cruz County | Santa Cruz | 95062 | 121 Anchorage Ave
MLS: ML82042937 | Status: Active | Price: $1,695,000
Beds/Baths: 2 / 1 /1
Property Type: Residential
| Beds | Baths | Sq Ft | Sq Ft Lot | Yr Built |
|---|---|---|---|---|
| 2 | 1 /1 | 1,130 | 2,570 | 2004 |
| Date | Time | Hosted By |
|---|---|---|
| Saturday, May 16 | 1:00 pm - 3:00 pm | Marcellina Catalano |
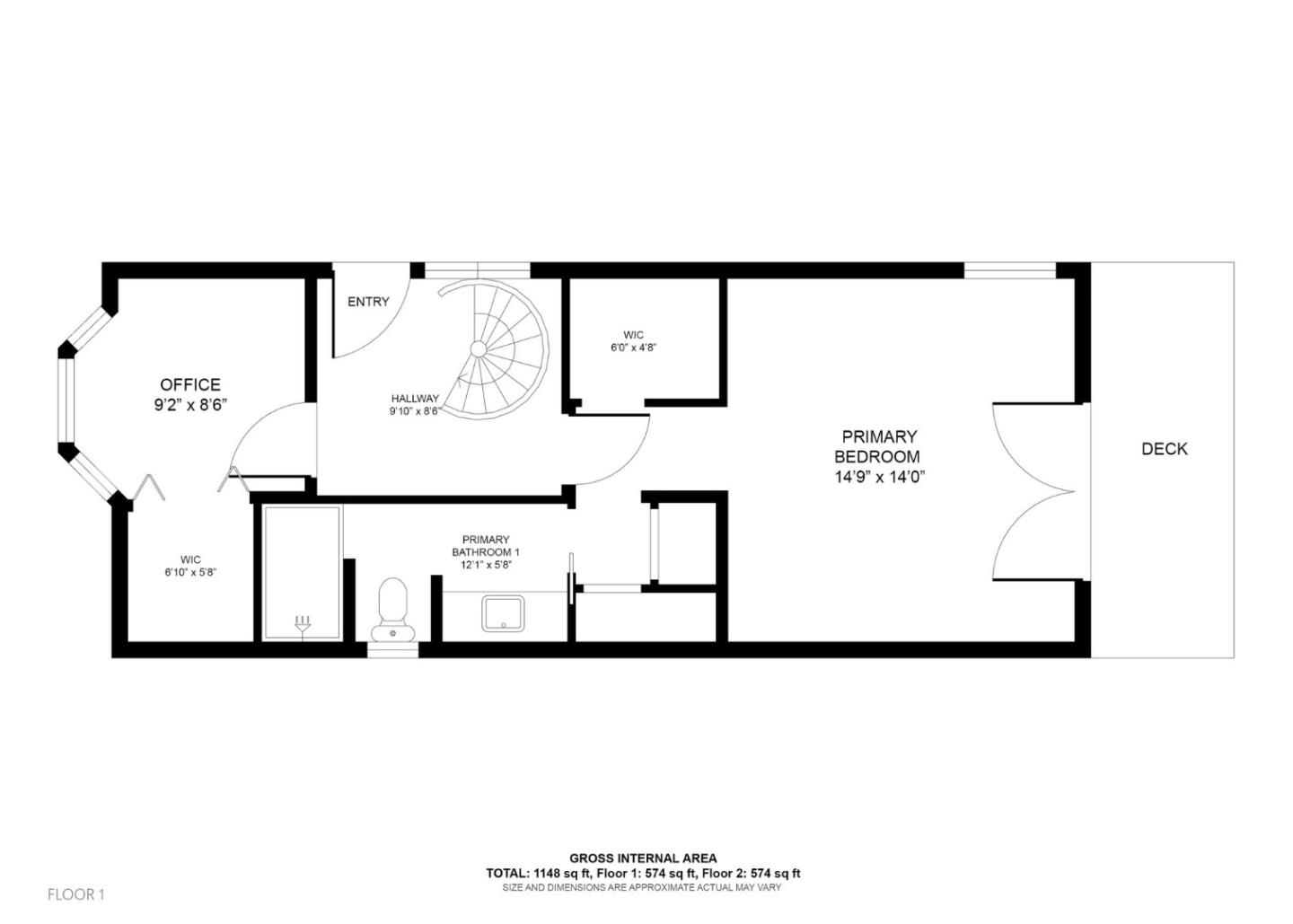
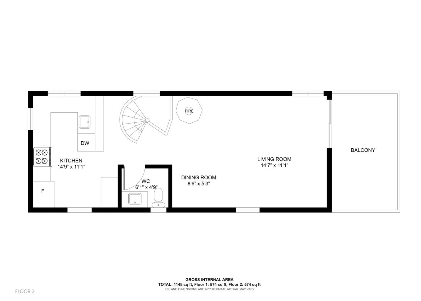
Situated in one of Santa Cruz most sought after neighborhoods, this move in ready home offers ocean views and effortless coastal living. Wake up to the sound of waves, with iconic surf breaks, beaches and scenic coastal paths just minutes away- an unmatched Pleasure Point lifestyle. Custom built in 2004, the home features a reverse floor plan designed to capture ocean views down Rockview. The upstairs living area is bright and airy with vaulted ceilings, expansive windows & abundant natural light. The modern kitchen features quartz countertops, new appliances & an ocean view. Unique finishes including a blue tile entry, spiral staircase and free standing gas fireplace add charm, while radiant heated flooring throughout is a rare luxury. Downstairs, the spacious primary suite opens to a private patio and a cozy second room works well as an office or for a daybed. The deck overlooking the backyard offers a peaceful place to unwind or watch your pet play in the fenced yard. The low maintenance outdoor space includes an outdoor shower, finished shed and a second parking space accessed via the rear alley. This home is ideal as a second home or effortless coastal retreat just moments from the ocean - simply move in and enjoy.
| Field | Value |
|---|---|
| MLS # | ML82042937 |
| MLS Source | MLSListings, Inc. |
| Days on Site | 88 |
| Feature | Details |
|---|---|
| Bedrooms | Ground Floor Bedroom, Inverted Floor Plan, Primary Suite/Retreat, Walk-in Closet, More than One Bedroom on Ground Floor |
| Bathrooms | Primary - Stall Shower(s), Stall Shower, Tile, Updated Bath(s), Full on Ground Floor |
| Kitchen | Exhaust Fan |
| Appliances | Dishwasher, Exhaust Fan, Garbage Disposal, Oven Range - Gas, Refrigerator, Washer/Dryer |
| Dining Room | Dining Area in Living Room |
| Family Room | No Family Room |
| Fireplace | Free Standing, Gas Burning, Gas Log, Living Room |
| Flooring | Hardwood, Tile, Wood |
| Laundry | Inside |
| Cooling | Ceiling Fan |
| Heating | Fireplace, Radiant Floors |
| Feature | Details |
|---|---|
| Roof | Tile |
| Foundation | Slab |
| Style | Mediterranean |
| Feature | Details |
|---|---|
| Garage/Parking | Covered Parking, Off-Street Parking, Garage: 0 Car(s) |
| Elementary District | Live Oak Elementary |
| High School District | Santa Cruz City High |
| Sewer | Public Sewer |
| Water | Public |
| Zoning | R-1-5-PP |
Marcellina Catalano
Sotheby’s International Realty
License #: 01941023
Phone: (831) 428-3617
School data provided by GreatSchools.org
| Address | Price | Beds | Baths | Sq Ft | Status |
|---|---|---|---|---|---|
| 656 24th Ave | $1,449,000 | 2 | 3 | 1,307 | PendingDoNotShow |
| 105 Wesley St | $1,649,000 | 3 | 2 | 1,472 | Active |
| 200 Magellan St | $1,995,000 | 5 | 3 | 2,422 | Contingent |
| 2220 Juan Pablo Ln | $1,398,000 | 3 | 2 | 1,434 | Active |
| 1901 Maciel Ave | $1,895,000 | 4 | 3 | 2,168 | Active |
©2026 MLSListings Inc. All rights reserved. All data, including all measurements and calculations of area, is obtained from various sources and has not been, and will not be, verified by broker or MLS. All information should be independently reviewed and verified for accuracy. Properties may or may not be listed by the office/agent presenting the information. Information provided is for personal, non-commercial use by the viewer and may not be redistributed without explicit authorization from MLSListings Inc.
Presently MLSListings.com displays Active, Contingent, Pending, and Recently Sold listings. Recently Sold listings are properties which were sold within the last three years. After that period listings are no longer displayed in MLSListings.com. Pending listings are properties under contract and no longer available for sale. Contingent listings are properties where there is an accepted offer, and seller may be seeking back-up offers. Active listings are available for sale.
This listing information is up-to-date as of May 12, 2026. For the most current information, please contact Marcellina Catalano, (831) 428-3617.