---
listing_id: ML82028069
status: Closed
price: 4900000
beds: 5
baths_full: 3
baths_half: 1
sqft_living: 3300
sqft_lot: 43560
lot_acres: 1
year_built: 1961
property_type: Residential
property_subtype: Single Family Residence
address: "12387 Stonebrook Dr"
city: Los Altos Hills
state: CA
zip: 94022
county: "Santa Clara County"
lat: 37.3583857
lng: -122.1209986
days_on_market: 91
hoa_fee: 
hoa_frequency: 
garage_spaces: 3
list_agent: "Linda Reinhardt"
list_office: "Intero Real Estate Services"
list_agent_phone: "(650) 793-7052"
list_agent_license: 01785037
mls_source: MLSL
modified: 2026-04-18
transaction_type: recentlySold
---

Home | Santa Clara County | Los Altos Hills | 94022 | 12387 Stonebrook Dr

12387 Stonebrook Dr, Los Altos Hills, CA 94022

MLS: ML82028069 | Status: Sold | Price: $4,900,000
Beds/Baths: 5 / 3 /1
Property Type: Residential

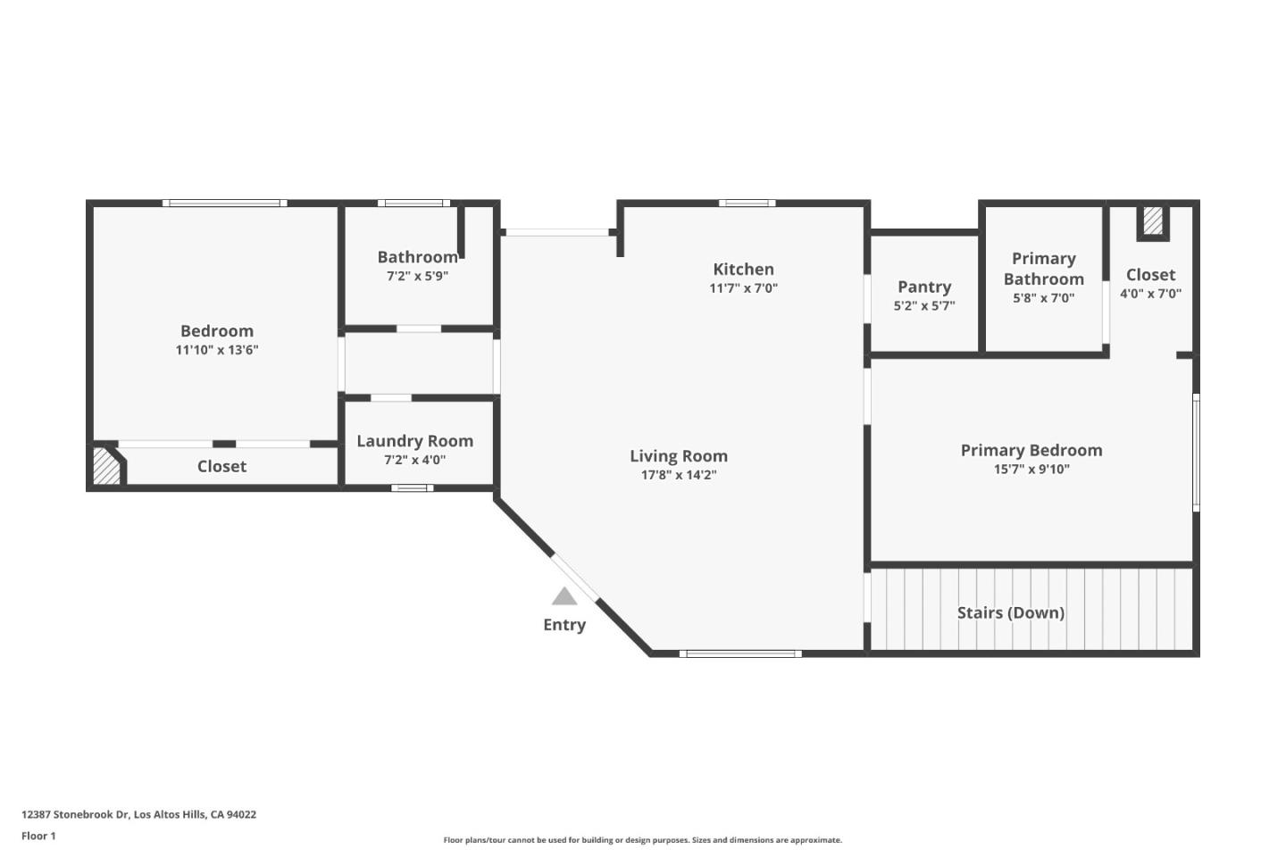
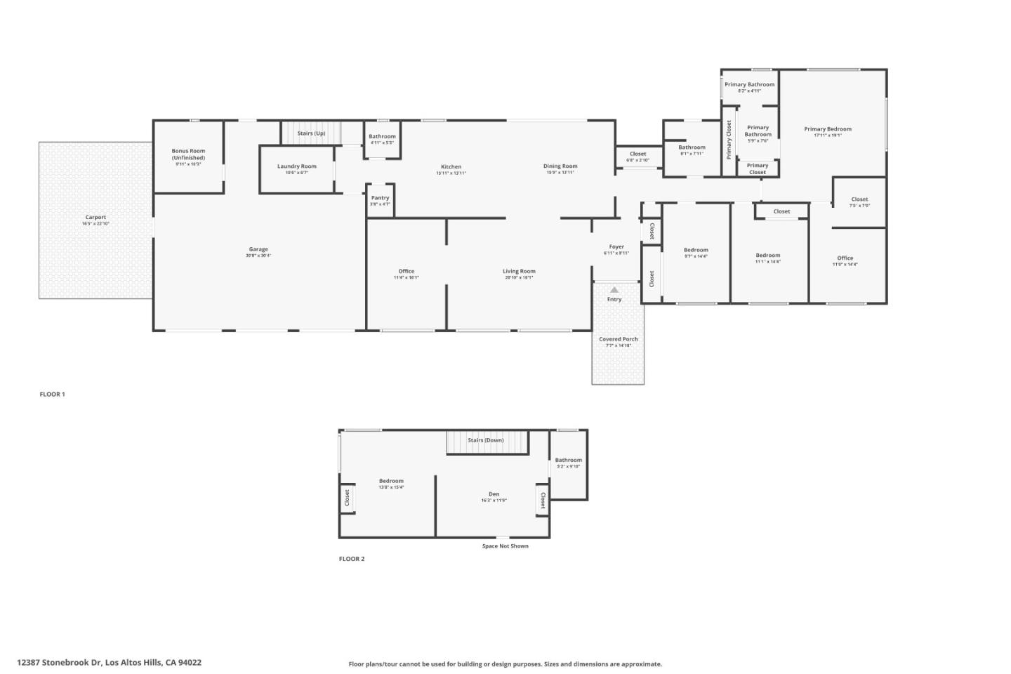
Quick Facts

Beds Baths Sq Ft Acres Lot Yr Built
5 3 /1 3,300 1 1961

Remarks

Private family compound on an approx. 43,560 sq ft lot, meticulously remodeled over two decades into the ultimate Silicon Valley retreat. Freshly painted with new garage doors and original wood floors throughout, this 5-bed, 3.5-bath estate reflects uncompromising quality by its licensed General Contractor owner. Major systems have been future-proofed, including city sewer, ground-mounted solar, custom 2-inch copper water main, and newer roof (2020). Fully permitted remodel includes a sound-proofed music room and a gourmet kitchen designed by a French Master Chef with a large pass-through window to the outdoor kitchen for seamless indoor-outdoor entertaining around the pool and hot tub. Secluded grounds feature productive fruit trees, including legacy Blenheim Apricot. High-end 3 bed 3 full bath, 2 full kitchens, 2 laundry rooms, 1,880 sq ft ADU offers flexibility for multigenerational living, guests, or workspace. Convenient proximity to Hwy 280 for commuting while maintaining a quiet, serene setting with very minimal freeway noise. Located on the Los Altos Hills Pathway System with immediate trail access and minutes to Downtown Los Altos. Must see in person, don't miss it!

MLS Listing Information

Field Value
MLS # ML82028069
MLS Source MLSListings, Inc.

Features

Interior Features

Feature Details
Bedrooms Primary Bedroom on Ground Floor
Bathrooms Double Sinks, Granite, Primary - Stall Shower(s), Shower over Tub - 1, Steam Shower, Tile, Full on Ground Floor, Half on Ground Floor
Kitchen Countertop - Granite, Island with Sink, Pantry
Appliances Dishwasher, Garbage Disposal, Hood Over Range, Microwave, Oven Range - Gas, Refrigerator, Washer/Dryer
Dining Room Dining Area
Family Room Separate Family Room
Flooring Carpet, Hardwood, Tile
Laundry Inside
Cooling Central Forced Air
Heating Central Forced Air - Gas

Exterior Features

Feature Details
Roof Composition
Foundation Concrete Perimeter
Pool Gunite, In Ground

Parking, School, and Other Information

Feature Details
Garage/Parking Attached Garage, Carport, Parking Area, Room for Oversized Vehicle, Garage: 3 Car(s)
Elementary District Los Altos Elementary
High School District Mountain View-Los Altos Union High
Sewer Public Sewer
Water Public
Zoning RA

Contact Information

Linda Reinhardt
Intero Real Estate Services
License #: 01785037
Phone: (650) 793-7052

School Ratings

School data provided by GreatSchools.org

Nearby Schools

School Type Grades Distance Rating
LASD Preschool public UG 1.18 mi N/A
Covington Elementary School public K-6 1.19 mi 9
Loyola Elementary School public K-6 1.56 mi 10
Gardner Bullis Elementary School public K-6 1.70 mi 10
Springer Elementary School public K-6 1.72 mi 10
Los Altos High School public 9-12 1.98 mi 10
Almond Elementary School public K-6 2.11 mi 10
Georgina P. Blach Junior High School public 7-8 2.13 mi 9
Montclaire Elementary School public K-5 2.34 mi 9
Santa Rita Elementary School public K-6 2.43 mi 10
Benjamin Bubb Elementary School public K-5 2.54 mi 10
Isaac Newton Graham Middle School public 6-8 2.56 mi 8
Ardis G. Egan Junior High School public 7-8 2.63 mi 9
Oak Avenue Elementary School public K-6 2.75 mi 10
Amy Imai Elementary public K-5 2.75 mi 10
MVWSD Preschool public UG 2.86 mi N/A
Mountain View High School public 9-12 2.92 mi 10
Mariano Castro Elementary School public K-5 2.92 mi 1
Gabriela Mistral Elementary public K-5 2.94 mi 7
Henry M. Gunn High School public 9-12 3.05 mi 10

Disclosures

©2026 MLSListings Inc. All rights reserved. All data, including all measurements and calculations of area, is obtained from various sources and has not been, and will not be, verified by broker or MLS. All information should be independently reviewed and verified for accuracy. Properties may or may not be listed by the office/agent presenting the information. Information provided is for personal, non-commercial use by the viewer and may not be redistributed without explicit authorization from MLSListings Inc.

Presently MLSListings.com displays Active, Contingent, Pending, and Recently Sold listings. Recently Sold listings are properties which were sold within the last three years. After that period listings are no longer displayed in MLSListings.com. Pending listings are properties under contract and no longer available for sale. Contingent listings are properties where there is an accepted offer, and seller may be seeking back-up offers. Active listings are available for sale.

This listing information is up-to-date as of April 18, 2026. For the most current information, please contact Linda Reinhardt, (650) 793-7052.