---
listing_id: ML82026158
status: Active
price: 1200000
beds: 3
baths_full: 1
baths_half: 0
sqft_living: 1260
sqft_lot: 27269
lot_acres: 0.626
year_built: 1909
property_type: Residential
property_subtype: Single Family Residence
address: "2606 Paul Minnie Ave"
city: Santa Cruz
state: CA
zip: 95062
county: "Santa Cruz County"
lat: 36.9856682
lng: -121.9838584
days_on_market: 176
hoa_fee: 
hoa_frequency: 
garage_spaces: 1
list_agent: "Kenrick Do"
list_office: "K&K Homes Realty"
list_agent_phone: "(408) 903-7974"
list_agent_license: 01363989
mls_source: MLSL
modified: 2026-02-03
transaction_type: buy
---

Home | Santa Cruz County | Santa Cruz | 95062 | 2606 Paul Minnie Ave

2606 Paul Minnie Ave, Santa Cruz, CA 95062

MLS: ML82026158 | Status: Active | Price: $1,200,000
Beds/Baths: 3 / 1
Property Type: Residential

Quick Facts

Beds Bath Sq Ft Acres Lot Yr Built
3 1 1,260 0.626 1909

Remarks

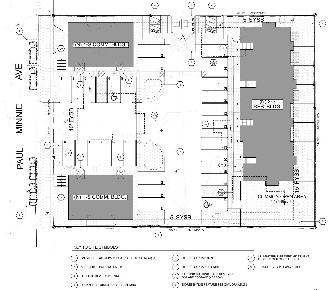
The proposed development site offers a highly promising opportunity for a mixed-use project that integrates modern residential apartments with vibrant commercial spaces. The tentative plan include 15 units apartment and 2 commercial buildings.

MLS Listing Information

Field Value
MLS # ML82026158
MLS Source MLSListings, Inc.
Days on Site 176

Features

Interior Features

Feature Details
Dining Room Dining Area
Family Room Other
Cooling None
Heating Floor Furnace

Exterior Features

Feature Details
Roof Composition
Foundation Concrete Perimeter

Parking, School, and Other Information

Feature Details
Garage/Parking Detached, Garage: 1 Car(s)
Elementary District Live Oak Elementary
High School District Santa Cruz City High
Sewer Public Sewer
Zoning PA

Contact Information

Kenrick Do
K&K Homes Realty
License #: 01363989
Phone: (408) 903-7974

School Ratings

School data provided by GreatSchools.org

Nearby Schools

School Type Grades Distance Rating
Ocean Alternative Education Center public K-8 0.17 mi 8
Special Education Preschool public UG 0.17 mi N/A
Green Acres Elementary School public K-5 0.25 mi 6
Harbor High School public 9-12 0.47 mi 7
Santa Cruz Adult public UG 0.67 mi N/A
Live Oak Elementary School public K-5 0.73 mi 5
De Laveaga Elementary School public K-5 0.76 mi 8
Santa Cruz Gardens Elementary School public K-5 1.25 mi 7
Shoreline Middle School public 6-8 1.26 mi 7
Del Mar Elementary School public K-5 1.39 mi 4
Soquel High School public 9-12 1.40 mi 9
Branciforte Middle School public 6-8 1.41 mi 9
Gault Elementary School public K-5 1.47 mi 5
Soquel Elementary School public K-5 1.49 mi 6
Santa Cruz City Elementary Alternative Education-Monarch School public K-5 1.70 mi 9
Ark Independent Studies School public 6-12 1.70 mi 4
Alternative Family Education School public K-12 1.70 mi 8
Costanoa Continuation High School public 9-12 1.70 mi 2
Main Street Elementary School public K-5 1.78 mi 7
New Brighton Middle School public 6-8 2.04 mi 7

Nearby Homes

Address Price Beds Baths Sq Ft Status
229 Coulson Ave $1,250,000 2 1 660 Contingent
1761 44th Ave $1,149,000 2 1 832 PendingDoNotShow
119 Kennan St $1,275,000 3 2/1 1,056 Active
1764 Del Mar Ct $1,250,000 3 2/1 1,468 Active
735 Eaton St $1,299,000 2 1/1 1,660 PendingDoNotShow

Disclosures

©2026 MLSListings Inc. All rights reserved. All data, including all measurements and calculations of area, is obtained from various sources and has not been, and will not be, verified by broker or MLS. All information should be independently reviewed and verified for accuracy. Properties may or may not be listed by the office/agent presenting the information. Information provided is for personal, non-commercial use by the viewer and may not be redistributed without explicit authorization from MLSListings Inc.

Presently MLSListings.com displays Active, Contingent, Pending, and Recently Sold listings. Recently Sold listings are properties which were sold within the last three years. After that period listings are no longer displayed in MLSListings.com. Pending listings are properties under contract and no longer available for sale. Contingent listings are properties where there is an accepted offer, and seller may be seeking back-up offers. Active listings are available for sale.

This listing information is up-to-date as of February 03, 2026. For the most current information, please contact Kenrick Do, (408) 903-7974.