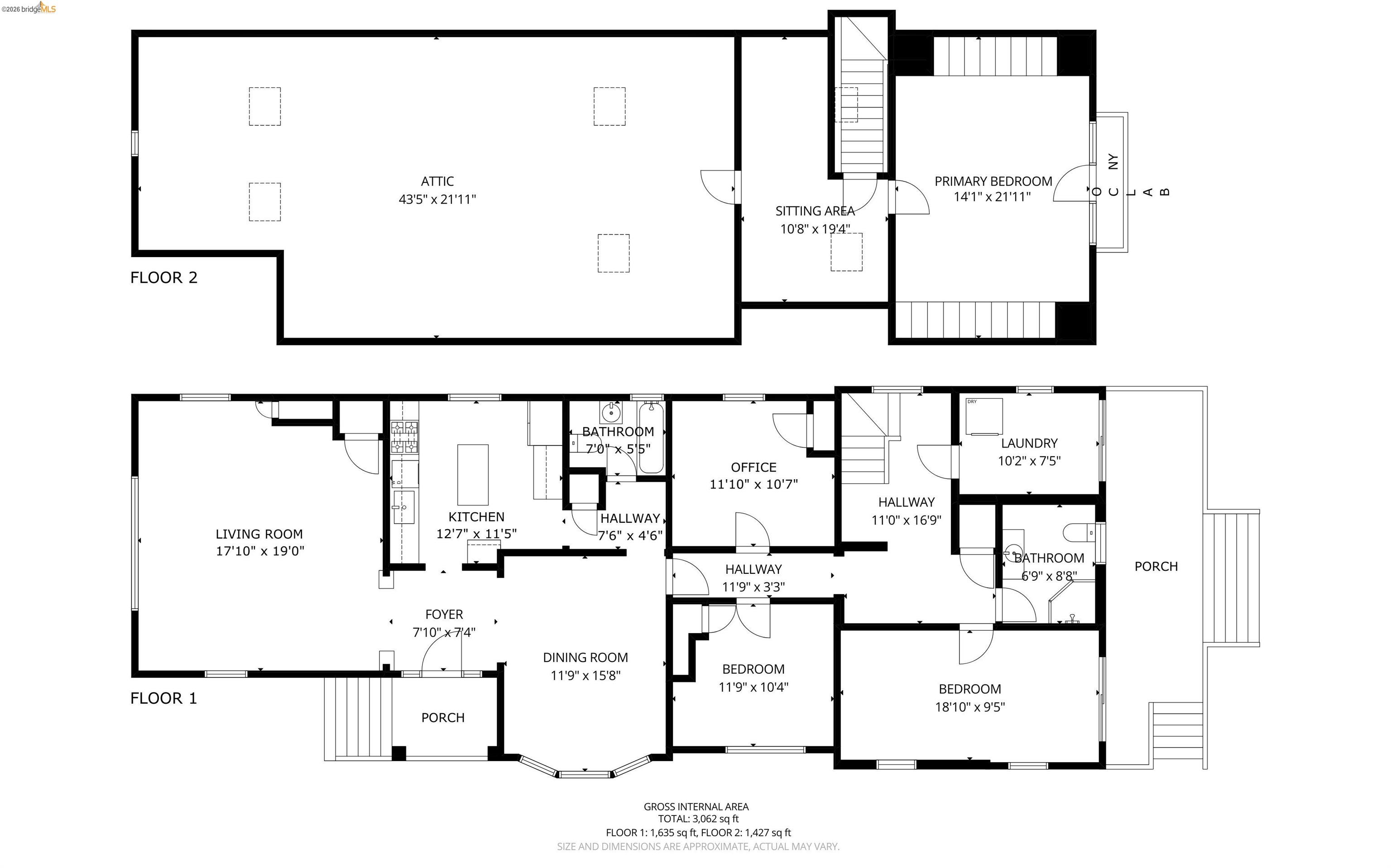
Built in 1910 and improved with intention, 1627 62nd Street is a four-bedroom, two-bathroom South Berkeley home that delivers more than its address suggests. A covered front porch and warm craftsman door set the tone. Inside, architectural columns frame a wide entry opening into a nearly 18x19-foot living room with honey-toned hardwood floors, recessed lighting, and a natural flow into the dining room and kitchen beyond. The kitchen features white cabinets with black hardware, white quartz countertops, a moss green subway tile backsplash, glass pendants over the peninsula, and a gas range — all updated in 2026. The main floor includes two bedrooms, a flexible office/fourth bedroom, two full bathrooms, and a laundry room with sliding glass doors to the back deck. Out back, a wisteria-draped pergola leads to a flagstone patio surrounded by established plantings. Upstairs, a primary suite with a dramatic vaulted ceiling, built-in storage, gable windows, and an adjacent skylit sitting room. A fully floored, skylit attic runs nearly 44 feet. Many systems improvements: full seismic retrofit, new sewer lateral, complete knob-and-tube decommissioning, high-efficiency furnace, and more than $180,000 in documented capital investment. HES = 4.
MLS #
EB41130176
MLS Source
Bridge MLS
Days on Site
9
Kitchen
Countertop - Solid Surface / Corian, Island, Updated
Appliances
Dishwasher, Garbage Disposal, Microwave, Oven Range - Gas, Refrigerator, Dryer, Washer
Fireplace
None
Flooring
Hardwood
Laundry
In Laundry Room
Cooling
Air Conditioning - None
Heating
Forced Air
Roof
Composition
Pool
None, Pool - No
Style
Traditional
Garage/Parking
Detached, Garage, Off-Street Parking, Tandem Parking, Garage: 1 Car(s)
1627 62nd Street is a Single Family Residence in Berkeley, CA 94703. This 2,108 square foot property sits on a 5,063 Sq Ft Lot and features 4 bedrooms & 2 full bathrooms. It is currently priced at $1,149,000 and was built in 1910. This address can also be written as 1627 62nd Street, Berkeley, CA 94703.
©2026 Bridge MLS. All rights reserved. All data, including all measurements and calculations of area, is obtained from various sources and has not been, and will not be, verified by broker or MLS. All information should be independently reviewed and verified for accuracy. Properties may or may not be listed by the office/agent presenting the information. Information provided is for personal, non-commercial use by the viewer and may not be redistributed without explicit authorization from Bridge MLS.
Presently MLSListings.com displays Active, Contingent, Pending, and Recently Sold listings. Recently Sold listings are properties which were sold within the last three years. After that period listings are no longer displayed in MLSListings.com. Pending listings are properties under contract and no longer available for sale. Contingent listings are properties where there is an accepted offer, and seller may be seeking back-up offers. Active listings are available for sale.
This listing information is up-to-date as of April 22, 2026. For the most current information, please contact Megan Micco, (510) 708-9952