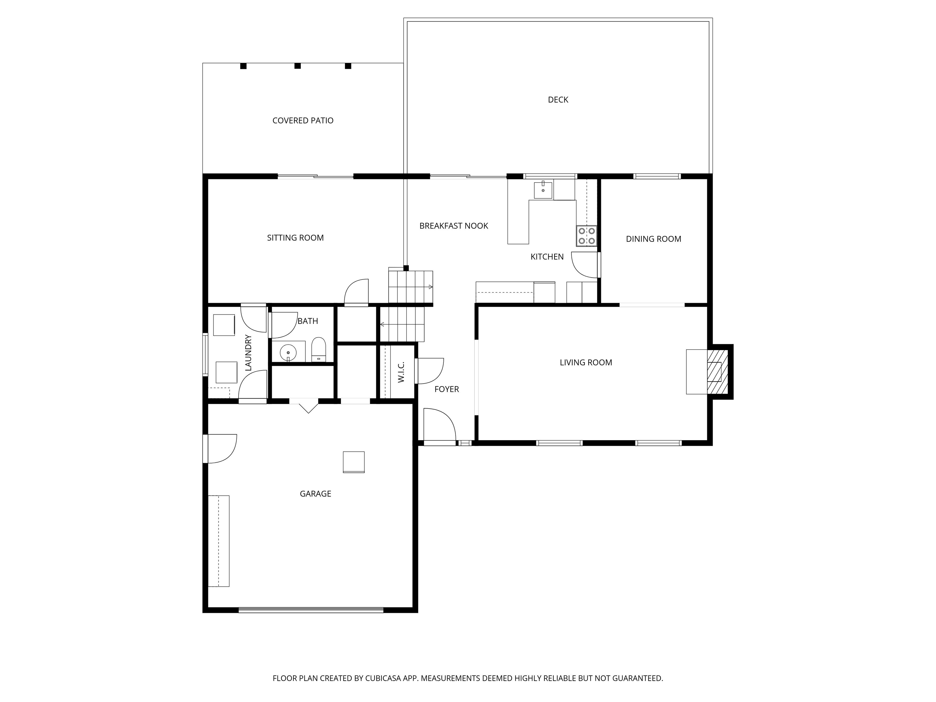
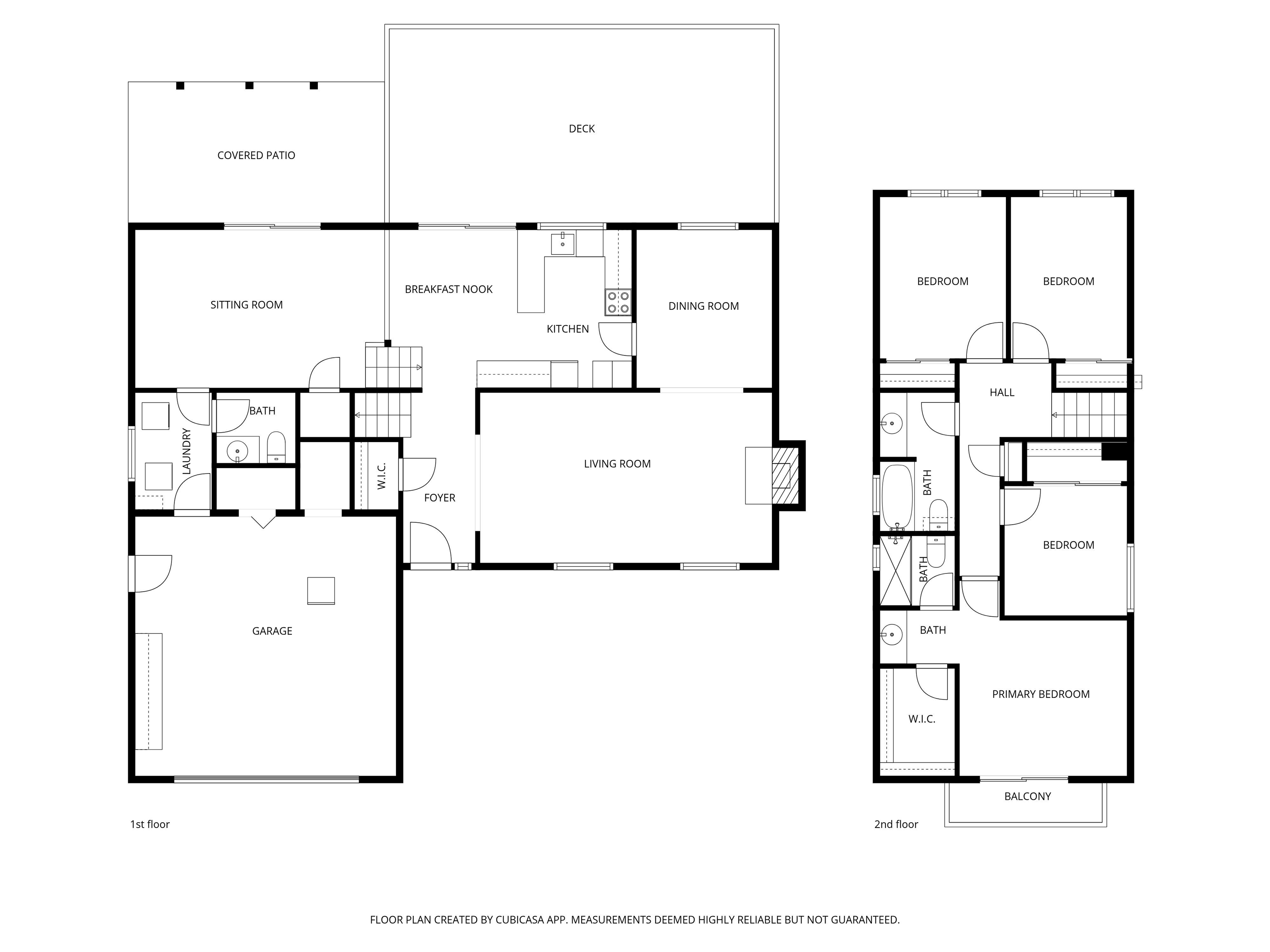
This well maintained home in North Vacaville has 4 bedrooms and 2.5 bathrooms. Upon entry, the foyer leads you to a large living room with vaulted ceilings, adjacent to a sizable formal dining room. The kitchen feels open and spacious with updated counters, extra cabinets, and recessed lighting. Next to the kitchen is a split level family room that feels as cozy and spacious as the living room. It has it's own sliding door for access to the patio. The primary bedroom has an updated ensuite bathroom and a walk-in closet. Notable upgrades include beautiful laminate floors, ornamental tile in the hallway and kitchen, and dual pane windows with interior shutters throughout. The remarkably manicured front and back yards were landscaped with drought tolerance in mind for low water use. Separate and sizeable laundry room sits next to the extra half bath downstairs. The expansive backyard, thoughtfully designed around a pool, still offers ample space for entertaining. Enjoy a large deck and a shaded patio with an awning, perfect for summer BBQ's and family gatherings. Large 2 car garage with extra storage space. The location is just minutes to major shopping areas, local schools and North Orchard Park. This home truly embodies comfort, style, functionality and entertainment!
MLS #
EB41119338
MLS Source
Bridge MLS
Days on Site
30
Bathrooms
Primary - Shower(s) over Tub(s), Primary - Tile, Primary - Updated Bath(s), Tile
Kitchen
Countertop - Stone, Eat In Kitchen, Updated
Appliances
Cooktop - Electric, Dishwasher, Garbage Disposal, Microwave, Refrigerator, Dryer, Washer
Fireplace
Living Room
Flooring
Carpet - Wall to Wall, Laminate
Laundry
None
Cooling
Ceiling Fan, Central -1 Zone
Heating
Forced Air
Roof
Composition
Pool
Heated - No, In Ground
Style
Contemporary
Garage/Parking
Attached Garage, Garage, Garage: 2 Car(s)
Sewer
Public Sewer
Water
Public
136 Marco Ln is a Single Family Residence in Vacaville, CA 95688. This 2,048 square foot property sits on a 7,840 Sq Ft Lot and features 4 bedrooms & 2 full and 1 partial bathrooms. It is currently priced at $659,000 and was built in 1975. This address can also be written as 136 Marco Ln, Vacaville, CA 95688.
©2026 Bridge MLS. All rights reserved. All data, including all measurements and calculations of area, is obtained from various sources and has not been, and will not be, verified by broker or MLS. All information should be independently reviewed and verified for accuracy. Properties may or may not be listed by the office/agent presenting the information. Information provided is for personal, non-commercial use by the viewer and may not be redistributed without explicit authorization from Bridge MLS.
Presently MLSListings.com displays Active, Contingent, Pending, and Recently Sold listings. Recently Sold listings are properties which were sold within the last three years. After that period listings are no longer displayed in MLSListings.com. Pending listings are properties under contract and no longer available for sale. Contingent listings are properties where there is an accepted offer, and seller may be seeking back-up offers. Active listings are available for sale.
This listing information is up-to-date as of February 22, 2026. For the most current information, please contact Daniel Lewis, (510) 735-7229