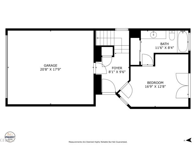
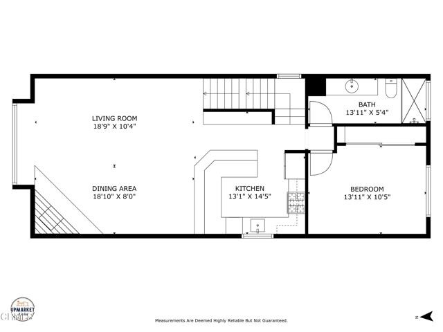
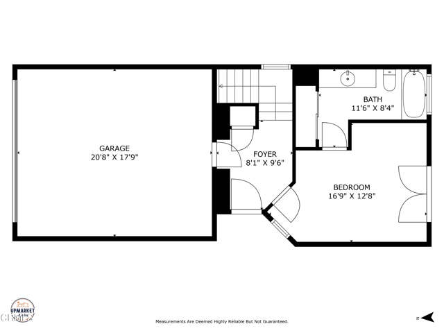
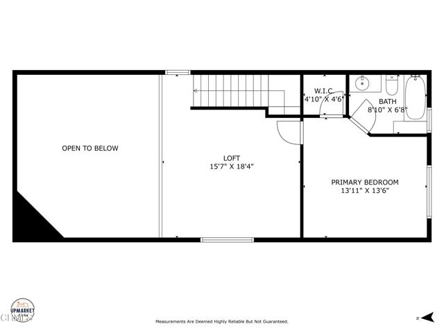
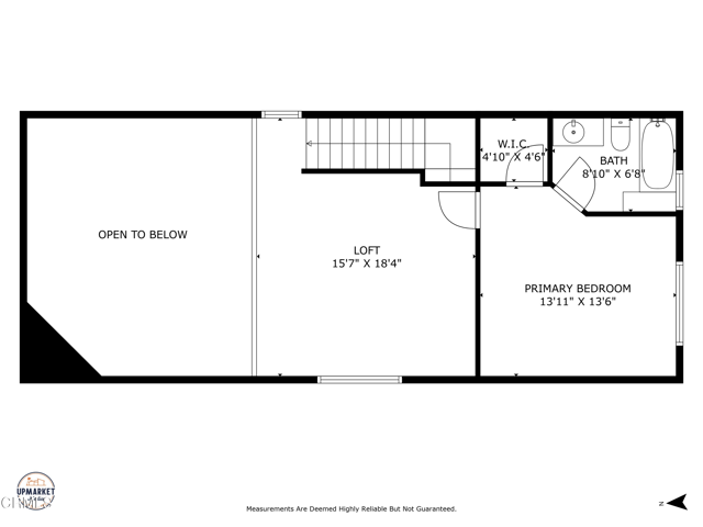
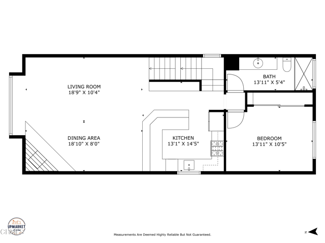
Fabulous tri-level beach home located at Hollywood by the Sea at Silverstrand Beach. Live just minutes from the beach in this spacious 1,821 square foot home. The home features 3 bedrooms and 3 bathrooms, with a bedroom and a bathroom on each floor. The first level boasts travertine tile flooring, while the second and third levels showcase luxury vinyl plank flooring. The living room offers vaulted ceilings, recessed lighting, and a fireplace. Adjacent to the living room, the kitchen is generously sized with ample cabinets and counter space, along with newer stainless-steel appliances. Ascending to the third level, you'll find a large loft/family room overlooking the living room. There is a peek-a-boo view of the ocean & islands from the loft window. Also on the third floor is the en-suite master bedroom, featuring a skylight, walk-in closet, and jet tub. Outside, there is a cozy backyard patio area perfect for barbecuing or hanging out with friends when you're not at the beach!
MLS #
CRV1-34681
MLS Source
California Regional MLS
Days on Site
33
Bedrooms
Ground Floor Bedroom
Appliances
Dishwasher, Microwave, Oven Range - Gas, Refrigerator
Dining Room
Dining Area in Living Room
Family Room
Other
Fireplace
Gas Starter, Wood Burning
Flooring
Other
Laundry
In Garage
Cooling
Ceiling Fan, None
Heating
Central Forced Air, Forced Air, Gas
Pool
None
Garage/Parking
Garage, Other, Garage: 2 Car(s)
292 Highland Dr is a Single Family Residence in Oxnard, CA 93035. This 1,821 square foot property sits on a 1,750 Sq Ft Lot and features 3 bedrooms & 3 full bathrooms. It is currently priced at $1,169,000 and was built in 1982. This address can also be written as 292 Highland Dr, Oxnard, CA 93035.
©2026 California Regional MLS. All rights reserved. All data, including all measurements and calculations of area, is obtained from various sources and has not been, and will not be, verified by broker or MLS. All information should be independently reviewed and verified for accuracy. Properties may or may not be listed by the office/agent presenting the information. Information provided is for personal, non-commercial use by the viewer and may not be redistributed without explicit authorization from California Regional MLS.
Presently MLSListings.com displays Active, Contingent, Pending, and Recently Sold listings. Recently Sold listings are properties which were sold within the last three years. After that period listings are no longer displayed in MLSListings.com. Pending listings are properties under contract and no longer available for sale. Contingent listings are properties where there is an accepted offer, and seller may be seeking back-up offers. Active listings are available for sale.
This listing information is up-to-date as of March 20, 2026. For the most current information, please contact Joe Virnig, (805) 701-5300