---
listing_id: CRSR26061340
status: Closed
price: 1100000
beds: 4
baths_full: 2
baths_half: 0
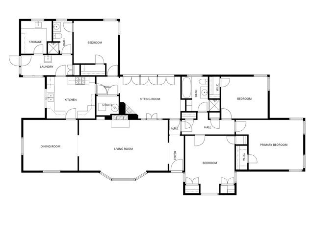
sqft_living: 2191
sqft_lot: 12431
lot_acres: 0.285
year_built: 1941
property_type: Residential
property_subtype: Single Family Residence
address: "10314 Encino"
city: Granada Hills
state: CA
zip: 91344
county: "Los Angeles County"
lat: 34.2582002
lng: -118.5150937
days_on_market: 56
hoa_fee: 
hoa_frequency: 
garage_spaces: 2
list_agent: "Michelle Hirsch"
list_office: "Equity Union"
list_agent_phone: "–"
list_agent_license: 01445587
mls_source: CRMLS
modified: 2026-05-01
transaction_type: recentlySold
---

Home | Los Angeles County | Granada Hills | 91344 | 10314 Encino

10314 Encino, Granada Hills, CA 91344

MLS: CRSR26061340 | Status: Sold | Price: $1,100,000
Beds/Baths: 4 / 2
Property Type: Residential

Quick Facts

Beds Baths Sq Ft Acres Lot Yr Built
4 2 2,191 0.285 1941

Remarks

First time on the market in over 53 years, this rare opportunity in highly sought-after Granada Hills presents endless potential. Situated on an expansive 12,000+ sq ft lot with a pool, this property offers the perfect canvas for those looking to create something truly special. Whether you envision building your dream home from the ground up or transforming the existing residence which is already almost 2,200 square feet, into a stunning modern retreat, the possibilities are limitless. Nestled in a fantastic, desirable neighborhood known for its charm and appeal, this property combines location, size, and opportunity—an increasingly hard-to-find combination. Investors, builders, and visionaries alike will appreciate the chance to reimagine this oversized parcel into a showpiece property or capitalize on its incredible development potential. Bring your imagination and seize this unique chance to create something extraordinary in one of Granada Hills’ most coveted areas.

MLS Listing Information

Field Value
MLS # CRSR26061340
MLS Source California Regional MLS

Features

Interior Features

Feature Details
Bedrooms Ground Floor Bedroom
Appliances Other
Fireplace Living Room
Laundry Other
Cooling Central Forced Air
Heating Central Forced Air

Exterior Features

Feature Details
Pool Pool - Yes

Parking, School, and Other Information

Feature Details
Garage/Parking Garage: 2 Car(s)
Elementary District Los Angeles Unified
High School District Los Angeles Unified
HOA Fee $0

Contact Information

Michelle Hirsch
Equity Union
License #: 01445587
Phone: –

School Ratings

School data provided by GreatSchools.org

Nearby Schools

School Type Grades Distance Rating
Andasol Avenue Elementary School public K-5 0.23 mi 8
Patrick Henry Middle School public 6-8 0.26 mi 8
Valley Academy Of Arts And Sciences public 9-12 0.71 mi 7
Granada Elementary Community Charter public K-5 0.73 mi 4
Balboa Gifted/High Ability Magnet Elementary School public 1,2,3,4,5 0.97 mi 10
Northridge Academy High public 9-12 1.03 mi 6
Mayall Street Elementary School public K-5 1.10 mi 10
Darby Avenue Charter School public K-5 1.18 mi 7
Oliver Wendell Holmes Middle School public 6-8 1.38 mi 10
Tulsa Street Elementary School public K-5 1.46 mi 6
Jane Addams Continuation School public 9-12 1.88 mi 2
John F. Kennedy High School public 9-12 1.95 mi 7
George K. Porter Middle School public 6-8 2.03 mi 9
Calahan Street Elementary public K-5 2.06 mi 6
Vintage Math/Science/Technology Magnet School public K-5 2.18 mi 8
Haskell STEAM Magnet Elementary School public K-5 2.21 mi 7
Gledhill Street Elementary School public K-5 2.23 mi 7
Parthenia Street Elementary School public K-5 2.34 mi 4
Albert Einstein Continuation School public 9-12 2.41 mi 3
Northridge Middle School public 6-8 2.41 mi 5

Disclosures

©2026 California Regional MLS. All rights reserved. All data, including all measurements and calculations of area, is obtained from various sources and has not been, and will not be, verified by broker or MLS. All information should be independently reviewed and verified for accuracy. Properties may or may not be listed by the office/agent presenting the information. Information provided is for personal, non-commercial use by the viewer and may not be redistributed without explicit authorization from California Regional MLS.

Presently MLSListings.com displays Active, Contingent, Pending, and Recently Sold listings. Recently Sold listings are properties which were sold within the last three years. After that period listings are no longer displayed in MLSListings.com. Pending listings are properties under contract and no longer available for sale. Contingent listings are properties where there is an accepted offer, and seller may be seeking back-up offers. Active listings are available for sale.

This listing information is up-to-date as of May 01, 2026. For the most current information, please contact Michelle Hirsch.