---
listing_id: CRSR26037602
status: Closed
price: 440000
beds: 2
baths_full: 2
baths_half: 0
sqft_living: 883
sqft_lot: 243829
lot_acres: 5.597
year_built: 1990
property_type: Residential
property_subtype: Condominium
address: "21358 Nandina Ln 204"
city: Newhall
state: CA
zip: 91321
county: "Los Angeles County"
lat: 34.3776114
lng: -118.5099887
days_on_market: 92
hoa_fee: 541
hoa_frequency: Monthly
garage_spaces: 2
list_agent: "Charity Jones"
list_office: "NextHome Real Estate Rockstars"
list_agent_phone: "–"
list_agent_license: 02015936
mls_source: CRMLS
modified: 2026-05-19
transaction_type: recentlySold
---

Home | Los Angeles County | Newhall | 91321 | 21358 Nandina Ln 204

21358 Nandina Ln #204, Newhall, CA 91321

MLS: CRSR26037602 | Status: Sold | Price: $440,000
Beds/Baths: 2 / 2
Property Type: Residential

Quick Facts

Beds Baths Sq Ft Acres Lot Yr Built
2 2 883 5.597 1990

Remarks

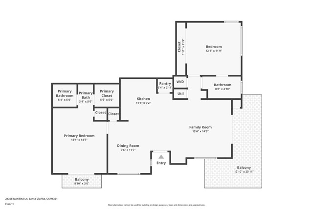
Nestled in the highly sought-after Vistas community, this turnkey, remodeled 2-bedroom, 2-bathroom end-unit condo offers the perfect blend of comfort, style, and convenience! This upper-level, penthouse-style residence showcases soaring vaulted ceilings, two private balconies, and an open-concept floor plan bathed in natural light. Extensively remodeled in 2023, the home features a beautifully updated kitchen, stunning modern bathrooms, upgraded carpeting, and fresh interior paint. The thoughtfully designed layout offers dual primary bedrooms positioned on opposite sides of the unit. Ideal for privacy, guests, roommates, or a home office setup! Additional highlights include in-unit laundry with a newer high-end Miele washer and dryer (included), upgraded HVAC (2021), and exceptional storage throughout. Enjoy a spacious walk-in primary closet with built-ins, kitchen pantry, multiple interior closets, and an additional exterior storage closet. The detached two-car tandem garage is deep enough for both vehicles with room to spare for storage or hobbies. The HOA covers structure insurance, water, and trash service, while providing access to resort-style amenities including multiple pools and spas, tennis courts, a volleyball court, and beautifully maintained picnic areas. Convenientl

MLS Listing Information

Field Value
MLS # CRSR26037602
MLS Source California Regional MLS

Features

Interior Features

Feature Details
Bedrooms Primary Suite/Retreat, Primary Suite/Retreat - 2+
Kitchen Other, Pantry
Appliances Dishwasher, Garbage Disposal, Microwave, Other, Oven - Gas, Oven Range - Gas, Refrigerator, Dryer, Washer
Dining Room Breakfast Bar, Formal Dining Room
Fireplace None
Laundry In Closet, Other, Stacked Only
Cooling Ceiling Fan, Central Forced Air
Heating Central Forced Air

Exterior Features

Feature Details
Pool Community Facility, Spa - Community Facility

Parking, School, and Other Information

Feature Details
Garage/Parking Garage, Gate/Door Opener, Guest / Visitor Parking, Garage: 2 Car(s)
High School District William S. Hart Union High
HOA Fee $541
HOA Fee Frequency Monthly
Complex Amenities Barbecue Area, Community Pool, Other, Picnic Area

Contact Information

Charity Jones
NextHome Real Estate Rockstars
License #: 02015936
Phone: –

School Ratings

School data provided by GreatSchools.org

Nearby Schools

School Type Grades Distance Rating
Dr. J. Michael McGrath Elementary School public K-6 0.24 mi 8
Newhall Elementary School public K-6 1.29 mi 5
William S. Hart High School public 9-12 1.64 mi 9
Learning Post High (Alternative) School public 7-12 1.67 mi 5
Golden Valley High School public 9-12 1.86 mi 7
Golden Oak Adult public UG 1.89 mi N/A
Placerita Junior High School public 7-8 1.91 mi 6
Peachland Avenue Elementary School public K-6 2.03 mi 9
Old Orchard Elementary School public K-6 2.17 mi 9
Bowman (Jereann) High (Continuation) School public 9-12 2.35 mi 2
Sequoia Charter School public 7-12 2.37 mi N/A
Hart Rop School public 9-12 2.41 mi N/A
Valley View Elementary School public K-6 2.41 mi 4
La Mesa Junior High School public 7-8 2.56 mi 7
Meadows Elementary School public K-6 2.73 mi 10
Wiley Canyon Elementary School public K-6 2.79 mi 7
Valencia Valley Elementary School public K-6 3.01 mi 10
Sulphur Springs Special Education Consortia public K-6 3.25 mi N/A
Golden Oak Community School public K-6 3.26 mi 9
Rio Vista Elementary School public K-6 3.47 mi 9

Disclosures

©2026 California Regional MLS. All rights reserved. All data, including all measurements and calculations of area, is obtained from various sources and has not been, and will not be, verified by broker or MLS. All information should be independently reviewed and verified for accuracy. Properties may or may not be listed by the office/agent presenting the information. Information provided is for personal, non-commercial use by the viewer and may not be redistributed without explicit authorization from California Regional MLS.

Presently MLSListings.com displays Active, Contingent, Pending, and Recently Sold listings. Recently Sold listings are properties which were sold within the last three years. After that period listings are no longer displayed in MLSListings.com. Pending listings are properties under contract and no longer available for sale. Contingent listings are properties where there is an accepted offer, and seller may be seeking back-up offers. Active listings are available for sale.

This listing information is up-to-date as of May 19, 2026. For the most current information, please contact Charity Jones.