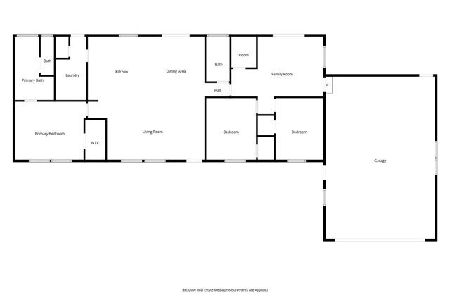
Set on a level 1.54-acre parcel with a 4-car garage, this spacious 3-bedroom, 2-bath home with an additional bonus room offers the perfect blend of comfort, flexibility, and outdoor living. A spacious open floor plan welcomes you in, with main living areas that flow seamlessly together making it ideal for everyday living and effortless entertaining. The thoughtfully designed split-bedroom layout provides privacy, while the expansive primary suite features a generous walk-in closet and an ensuite bath complete with double sinks, a step-in shower, and a relaxing soaking tub. The versatile bonus room is perfect for a playroom, homeschool space, media room, or whatever suits your lifestyle. An indoor laundry room with abundant storage and a convenient folding counter adds everyday functionality, and the attached 4-car garage (2-car wide plus 2-car deep) offers ample room for vehicles, hobbies, or additional storage. Step outside to an impressive 30x66 back patio—an exceptional space for entertaining, gatherings, or simply enjoying the wide-open backyard with plenty of room for kids, pets, or future additions. With space to add a shop and prior 3-phase electrical on site, there’s exciting potential to expand and customize. Located just steps from the Memorial Walking Trail, you’ll enj
MLS #
CRSN26040849
MLS Source
California Regional MLS
Days on Site
1
Bedrooms
Primary Suite/Retreat
Appliances
Dishwasher, Microwave, Oven Range - Electric
Dining Room
Breakfast Bar, Formal Dining Room
Family Room
Separate Family Room
Fireplace
None
Flooring
Laminate
Laundry
In Laundry Room
Cooling
Ceiling Fan, Central Forced Air
Heating
Central Forced Air
Roof
Composition
Pool
None
Garage/Parking
Garage: 4 Car(s)
Elementary District
Paradise Unified
High School District
Paradise Unified
Sewer
Septic Tank
HOA Fee
$0
8606 Skyway is a Manufactured Home in Paradise, CA 95969. This 1,782 square foot property sits on a 1.54 Acres Lot and features 3 bedrooms & 2 full bathrooms. It is currently priced at $398,000 and was built in 2019. This address can also be written as 8606 Skyway, Paradise, CA 95969.
©2026 California Regional MLS. All rights reserved. All data, including all measurements and calculations of area, is obtained from various sources and has not been, and will not be, verified by broker or MLS. All information should be independently reviewed and verified for accuracy. Properties may or may not be listed by the office/agent presenting the information. Information provided is for personal, non-commercial use by the viewer and may not be redistributed without explicit authorization from California Regional MLS.
Presently MLSListings.com displays Active, Contingent, Pending, and Recently Sold listings. Recently Sold listings are properties which were sold within the last three years. After that period listings are no longer displayed in MLSListings.com. Pending listings are properties under contract and no longer available for sale. Contingent listings are properties where there is an accepted offer, and seller may be seeking back-up offers. Active listings are available for sale.
This listing information is up-to-date as of February 26, 2026. For the most current information, please contact Kandice Rickson