---
listing_id: CRPW25279521
status: Closed
price: 2260000
beds: 4
baths_full: 3
baths_half: 0
sqft_living: 2663
sqft_lot: 5400
lot_acres: 
year_built: 1997
property_type: Residential
property_subtype: Single Family Residence
address: "2503 Newman Ave"
city: Tustin
state: CA
zip: 92782
county: "Orange County"
lat: 33.7573948
lng: -117.7696979
days_on_market: 119
hoa_fee: 250
hoa_frequency: Monthly
garage_spaces: 3
list_agent: "John Katnik"
list_office: "Katnik Brothers R.E. Services"
list_agent_phone: "–"
list_agent_license: 01881694
mls_source: CRMLS
modified: 2026-04-21
transaction_type: recentlySold
---

Home | Orange County | Tustin | 92782 | 2503 Newman Ave

2503 Newman Ave, Tustin, CA 92782

MLS: CRPW25279521 | Status: Sold | Price: $2,260,000
Beds/Baths: 4 / 3
Property Type: Residential

Quick Facts

Beds Baths Sq Ft Sq Ft Lot Yr Built
4 3 2,663 5,400 1997

Remarks

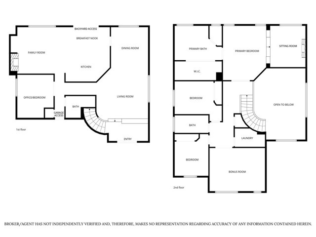
Welcome to 2503 Newman Avenue, a Turn-Key Dream Home Located on a Coveted Interior Lot in the Gated El Dorado Community of Tustin Ranch. This Remodeled Home Enjoys Four Bedrooms and Three Bathrooms (Main Floor Bedroom is Currently Used as an Office), Bonus Room, New Water Heater, Newer HVAC System, Wood Floors, and Countless Owner Upgrades Throughout. The Open Concept Living Room and Dining Room Showcase Plantation Shutters and Backyard Views. The Gourmet Kitchen Features Ample Cabinet Space, Granite Counters, Island, Stainless Steel Appliances, and a Breakfast Nook with Backyard Access. The Kitchen Opens to the Family Room with Cozy Fireplace and Built-Ins. The Luxurious Master Retreat Enjoys A Double Door Entry, Seating Area with Fireplace, Crown Molding and Backyard Views. The Spa-Like Master Bathroom Showcases a Walk-In Shower, Separate Tub, Dual Vanity, and a Large Walk-In Closet. Convenient Upstairs Laundry Room with Built-In Cabinets and Sink. The Well-Maintained Backyard Features a Patio, Grass Area, and Mature Trees. Direct Access Three Car Garage with Built-In Storage and Epoxy Floors. Community Amenities Include Two Gated Entries, Pool, Spa, BBQ Area, Green Belt, and Playground. Walking Distance to Peters Canyon Elementary School, Pioneer Middle School, Cedar Grove Par

MLS Listing Information

Field Value
MLS # CRPW25279521
MLS Source California Regional MLS

Features

Interior Features

Feature Details
Bedrooms Ground Floor Bedroom, Primary Suite/Retreat
Kitchen Other
Appliances Dishwasher, Other
Dining Room Breakfast Nook, Formal Dining Room
Family Room Other
Fireplace Family Room
Laundry In Laundry Room, Other, Upper Floor
Cooling Central Forced Air
Heating Central Forced Air

Exterior Features

Feature Details
Roof Tile
Pool Community Facility, In Ground, Spa - Community Facility

Parking, School, and Other Information

Feature Details
Garage/Parking Attached Garage, Garage, Other, Garage: 3 Car(s)
Elementary District Tustin Unified
High School District Tustin Unified
HOA Fee $250
HOA Fee Frequency Monthly
Complex Amenities Barbecue Area, Community Pool, Picnic Area, Playground

Contact Information

John Katnik
Katnik Brothers R.E. Services
License #: 01881694
Phone: –

School Ratings

School data provided by GreatSchools.org

Nearby Schools

School Type Grades Distance Rating
Peters Canyon Elementary School public K-5 0.28 mi 10
Pioneer Middle School public 6-8 0.54 mi 9
Ladera Elementary School public K-5 0.89 mi 9
Arroyo Elementary School public K-5 1.13 mi 8
Red Hill Elementary School public K-5 1.32 mi 10
Myford Elementary School public K-5 1.54 mi 8
Heritage Elementary public K-5 1.55 mi 9
Tustin Memorial Elementary School public K-5 1.65 mi 10
Foothill High School public 9-12 1.72 mi 9
Tustin Ranch Elementary School public K-5 1.87 mi 6
Hicks Canyon Elementary School public K-5 2.01 mi 10
Panorama Elementary School public K-6 2.02 mi 9
Northwood High School public 9-12 2.03 mi 10
Barbara Benson Elementary School public K-5 2.08 mi 7
Hewes Middle School public 6-8 2.22 mi 7
Chapman Hills Elementary School public K-6 2.22 mi 8
Canyon View Elementary School public K-6 2.36 mi 9
Guin Foss Elementary School public K-5 2.37 mi 6
C. E. Utt Middle School public 6-8 2.57 mi 6
Jordan Academy of Language and Computer Science public K-6 2.62 mi 5

Disclosures

©2026 California Regional MLS. All rights reserved. All data, including all measurements and calculations of area, is obtained from various sources and has not been, and will not be, verified by broker or MLS. All information should be independently reviewed and verified for accuracy. Properties may or may not be listed by the office/agent presenting the information. Information provided is for personal, non-commercial use by the viewer and may not be redistributed without explicit authorization from California Regional MLS.

Presently MLSListings.com displays Active, Contingent, Pending, and Recently Sold listings. Recently Sold listings are properties which were sold within the last three years. After that period listings are no longer displayed in MLSListings.com. Pending listings are properties under contract and no longer available for sale. Contingent listings are properties where there is an accepted offer, and seller may be seeking back-up offers. Active listings are available for sale.

This listing information is up-to-date as of April 21, 2026. For the most current information, please contact John Katnik.