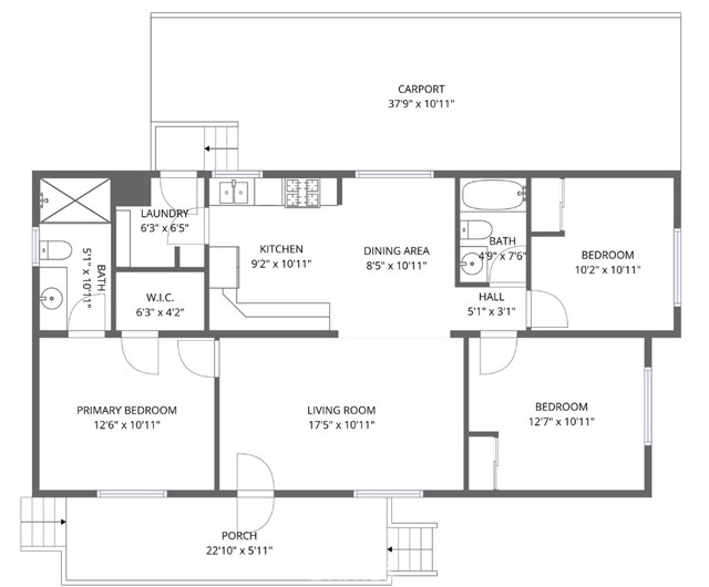
Enjoy coastal living in this 3-bedroom, 2-bath manufactured home located in the desirable Duna Vista Mobile Home Park, a 55+ age-restricted community just over a mile from the beach. Built in 1997 and offering over 1,000± sq ft, this home provides comfortable living in a quiet, well-kept neighborhood with a community room and organized activities. The home features a functional layout with a spacious living room, dedicated dining area, and a well-equipped kitchen with ample cabinetry and counter space. A large primary bedroom is thoughtfully positioned on the opposite side of the home from the second and third bedrooms, offering added privacy. An independent laundry room is designed for a side-by-side washer and dryer, adding everyday convenience. Central air conditioning provides year-round comfort. Step outside to enjoy the coastal breeze on the large covered patio, or relax in one of the larger private backyards in the park, perfect for gardening or entertaining. The property also includes two detached storage sheds and a covered carport with convenient access to the kitchen. Conveniently located just minutes from downtown Pismo Beach, the Oceano Dunes, and the Village of Arroyo Grande, with nearby shopping and dining. This home offers a wonderful opportunity to enjoy low-m
MLS #
CRPI26053737
MLS Source
California Regional MLS
Days on Site
21
Laundry
In Laundry Room
Pool
None
Garage/Parking
Carport, Garage: 0 Car(s)
Elementary District
Lucia Mar Unified
High School District
Lucia Mar Unified
Unit Levels
One
HOA Fee
$0
Complex Amenities
Game Room
2400 Cienaga St 59 is a Manufactured In Park in Oceano, CA 93445. This 1,080 square foot property sits on a – Sq Ft Lot and features 3 bedrooms & 2 full bathrooms. It is currently priced at $275,000 and was built in 1997. This address can also be written as 2400 Cienaga St #59, Oceano, CA 93445.
©2026 California Regional MLS. All rights reserved. All data, including all measurements and calculations of area, is obtained from various sources and has not been, and will not be, verified by broker or MLS. All information should be independently reviewed and verified for accuracy. Properties may or may not be listed by the office/agent presenting the information. Information provided is for personal, non-commercial use by the viewer and may not be redistributed without explicit authorization from California Regional MLS.
Presently MLSListings.com displays Active, Contingent, Pending, and Recently Sold listings. Recently Sold listings are properties which were sold within the last three years. After that period listings are no longer displayed in MLSListings.com. Pending listings are properties under contract and no longer available for sale. Contingent listings are properties where there is an accepted offer, and seller may be seeking back-up offers. Active listings are available for sale.
This listing information is up-to-date as of March 31, 2026. For the most current information, please contact April Moulton