---
listing_id: CRPI26020897
status: Closed
price: 1200000
beds: 5
baths_full: 4
baths_half: 1
sqft_living: 3734
sqft_lot: 12197
lot_acres: 0.28
year_built: 1974
property_type: Residential
property_subtype: Single Family Residence
address: "390 Meadowbrook"
city: Santa Maria
state: CA
zip: 93455
county: "Santa Barbara County"
lat: 34.8752707
lng: -120.4406026
days_on_market: 71
hoa_fee: 
hoa_frequency: 
garage_spaces: 4
list_agent: "Shiloh Flagg"
list_office: "Modern Broker"
list_agent_phone: "(805) 315-7160"
list_agent_license: 01996245
mls_source: CRMLS
modified: 2026-04-02
transaction_type: recentlySold
---

Home | Santa Barbara County | Santa Maria | 93455 | 390 Meadowbrook

390 Meadowbrook, Santa Maria, CA 93455

MLS: CRPI26020897 | Status: Sold | Price: $1,200,000
Beds/Baths: 5 / 4 /1
Property Type: Residential

Quick Facts

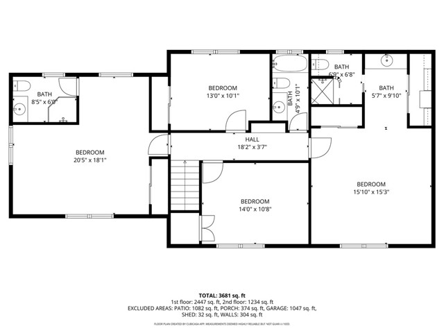
Beds Baths Sq Ft Acres Lot Yr Built
5 4 /1 3,734 0.28 1974

Remarks

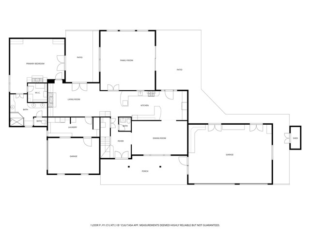
Welcome to 390 Meadowbrook, an exceptional 3,734± sq. ft. residence located in the highly sought-after Foxenwoods Estates. Situated on a spacious corner lot of approximately 1/3 acre, this beautifully updated 5-bedroom, 5-bathroom home offers refined comfort, timeless design, and room to truly live. Designed for both everyday living and elegant entertaining, the home features a chef’s dream kitchen complete with a Sub-Zero refrigerator, expansive counter space, and two breakfast bars—perfect for gathering. Enjoy multiple living spaces including a spacious family room, formal living room, and formal dining area, providing flexibility for hosting and relaxation. The lower level boasts a large primary en-suite retreat with fireplace, generous walk-in closet, and a beautifully appointed bathroom—creating a private sanctuary within the home. Upstairs, you’ll find two additional en-suites ideal for guests or multigenerational living, along with additional bedrooms and baths offering comfort and privacy for all. The front yard showcases stunning curb appeal with stamped and stained concrete and elegant stone veneer accents that truly make a statement. The backyard is quiet, expansive, and designed for entertaining, with ample space to create your dream outdoor kitchen or even a

MLS Listing Information

Field Value
MLS # CRPI26020897
MLS Source California Regional MLS

Features

Interior Features

Feature Details
Bedrooms Ground Floor Bedroom
Kitchen Pantry
Family Room Other
Fireplace Den
Laundry In Laundry Room
Cooling None
Heating Central Forced Air

Exterior Features

Feature Details
Pool Community Facility

Parking, School, and Other Information

Feature Details
Garage/Parking Garage: 4 Car(s)
HOA Fee $0

Contact Information

Shiloh Flagg
Modern Broker
License #: 01996245
Phone: (805) 315-7160

School Ratings

School data provided by GreatSchools.org

Nearby Schools

School Type Grades Distance Rating
Patterson Road Elementary School public K-6 0.74 mi 7
Santa Barbara County Rop-North School public AE 0.74 mi N/A
Delta High School public 9-12 0.74 mi 2
Lakeview Junior High School public 7-8 1.15 mi 5
Ernest Righetti High School public 9-12 1.27 mi 6
Alice Shaw Elementary School public K-6 1.28 mi 5
Ralph Dunlap Elementary School public K-6 1.61 mi 6
Joe Nightingale Elementary School public K-6 1.68 mi 9
Pine Grove Elementary School public K-6 1.78 mi 8
Arellanes Junior High School public 7-8 2.75 mi 2
Arellanes (Don Juan Bautista) Elementary School public K-6 2.75 mi 6
Jimenez, Roberto And Dr. Francisco Elementary School public K-8 3.49 mi 6
Liberty Elementary School public K-6 3.75 mi 4
Bill Libbon Elementary public K-6 3.77 mi 7
Battles (Washington) Elementary School public K-6 4.00 mi 2
Adam (William Laird) Elementary School public K-6 4.21 mi 2
Sanchez (David J.) Elementary School public K-6 4.46 mi 4
Miller (Isaac) Elementary School public K-6 4.57 mi 4
Santa Maria High School public 9-12 4.61 mi 4

Disclosures

©2026 California Regional MLS. All rights reserved. All data, including all measurements and calculations of area, is obtained from various sources and has not been, and will not be, verified by broker or MLS. All information should be independently reviewed and verified for accuracy. Properties may or may not be listed by the office/agent presenting the information. Information provided is for personal, non-commercial use by the viewer and may not be redistributed without explicit authorization from California Regional MLS.

Presently MLSListings.com displays Active, Contingent, Pending, and Recently Sold listings. Recently Sold listings are properties which were sold within the last three years. After that period listings are no longer displayed in MLSListings.com. Pending listings are properties under contract and no longer available for sale. Contingent listings are properties where there is an accepted offer, and seller may be seeking back-up offers. Active listings are available for sale.

This listing information is up-to-date as of April 02, 2026. For the most current information, please contact Shiloh Flagg, (805) 315-7160.