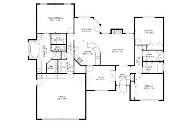
Welcome to 19336 Mountain Meadow North, a beautifully built country charmer offering a desirable, spacious floor plan and an inviting backyard that backs to open space. This thoughtfully designed home blends comfort and elegance with delightful upgrades throughout. Step inside to approximately 1,835 sq ft of light-filled living space featuring 10-foot barrel-vaulted ceilings and an open, airy feel. French doors lead to a versatile bonus room—ideal for formal dining, a home office, or a potential fourth bedroom. The open kitchen includes a cozy nook and flows seamlessly into the main living areas, perfect for everyday living and entertaining. The private primary suite is set on the opposite side of the home from the additional bedrooms and features a spacious ensuite bath with dual sinks, soaking tub, separate shower, and two walk-in closets. Two additional generously sized bedrooms and a full bath offer comfort and privacy, enhanced by beautiful shutter window coverings. The backyard is an entertainer’s oasis, showcasing an in-ground 7’ x 64’ lap pool, built-in BBQ area, and fencing, all backing to serene open space. Interior carpet is in need of replacement, and the seller is open to considering a flooring allowance. This property offers exceptional potential, space,
MLS #
CRLC26003980
MLS Source
California Regional MLS
Days on Site
17
Bedrooms
Ground Floor Bedroom, Primary Suite/Retreat
Kitchen
Other
Appliances
Dishwasher, Garbage Disposal, Microwave, Other, Oven - Self Cleaning, Oven Range - Built-In, Refrigerator, Trash Compactor, Dryer, Washer
Dining Room
Breakfast Bar, Breakfast Nook
Family Room
Other
Fireplace
Gas Burning, Living Room
Laundry
Other
Cooling
Ceiling Fan, Central Forced Air
Heating
Central Forced Air, Fireplace, Propane
Roof
Composition
Foundation
Concrete Perimeter
Pool
Community Facility, In Ground, Lap, Pool - Yes
Style
Traditional
Garage/Parking
Attached Garage, Garage, Gate/Door Opener, Other, Garage: 2 Car(s)
Elementary District
Middletown Unified
High School District
Middletown Unified
HOA Fee
$323
HOA Fee Frequency
Monthly
Complex Amenities
Barbecue Area, Boat Dock, Community Pool, Conference Facilities, Game Room, Golf Course, Picnic Area, Playground
19336 Mountain Meadow is a Single Family Residence in Hidden Valley Lake, CA 95467. This 1,835 square foot property sits on a 9,583 Sq Ft Lot and features 3 bedrooms & 3 full bathrooms. It is currently priced at $459,000 and was built in 2003. This address can also be written as 19336 Mountain Meadow, Hidden Valley Lake, CA 95467.
©2026 California Regional MLS. All rights reserved. All data, including all measurements and calculations of area, is obtained from various sources and has not been, and will not be, verified by broker or MLS. All information should be independently reviewed and verified for accuracy. Properties may or may not be listed by the office/agent presenting the information. Information provided is for personal, non-commercial use by the viewer and may not be redistributed without explicit authorization from California Regional MLS.
Presently MLSListings.com displays Active, Contingent, Pending, and Recently Sold listings. Recently Sold listings are properties which were sold within the last three years. After that period listings are no longer displayed in MLSListings.com. Pending listings are properties under contract and no longer available for sale. Contingent listings are properties where there is an accepted offer, and seller may be seeking back-up offers. Active listings are available for sale.
This listing information is up-to-date as of January 15, 2026. For the most current information, please contact Kimberly Rupp, (707) 355-2727