---
listing_id: CRGD26011327
status: Active
price: 1300000
beds: 0
baths_full: 0
baths_half: 0
sqft_living: 
sqft_lot: 13355
lot_acres: 0.306
year_built: 
property_type: Land
property_subtype: 
address: "2442 Cross Street"
city: La Crescenta
state: CA
zip: 91214
county: "Los Angeles County"
lat: 34.2212763
lng: -118.232656
days_on_market: 98
hoa_fee: 
hoa_frequency: 
garage_spaces: 0
list_agent: "Vartan Ambarian"
list_office: "Keller Williams R. E. Services"
list_agent_phone: "–"
list_agent_license: 00983815
mls_source: CRMLS
modified: 2026-02-03
transaction_type: buy
---

Home | Los Angeles County | La Crescenta | 91214 | 2442 Cross Street

2442 Cross Street, La Crescenta, CA 91214

MLS: CRGD26011327 | Status: Active | Price: $1,300,000
Beds/Baths: – / –
Property Type: Land

Quick Facts

Beds Baths Sq Ft Acres Lot Yr Built
0.306

Remarks

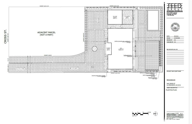
Prime La Crescenta development opportunity! Vacant land offered with approved plans for a 4,260 sq ft custom home, including garage, patio, pool, grading, and retaining walls. Plans have completed plan check and are ready for permit issuance once remaining standard fees and permit extensions are paid. Permit extensions are available and will carry approvals into Spring 2026 (final extension period). Start with grading and retaining wall permits, then proceed with home construction after inspection approval. A great chance to save months of design and review time and build in a sought-after La Crescenta location.

MLS Listing Information

Field Value
MLS # CRGD26011327
MLS Source California Regional MLS
Days on Site 98

Features

Parking, School, and Other Information

Feature Details
HOA Fee $0
Zoning LX

Contact Information

Vartan Ambarian
Keller Williams R. E. Services
License #: 00983815
Phone: –

School Ratings

School data provided by GreatSchools.org

Nearby Schools

School Type Grades Distance Rating
Mountain Avenue Elementary School public K-6 0.35 mi 9
Rosemont Middle School public 7-8 0.38 mi 8
La Crescenta Elementary School public K-6 0.44 mi 7
Crescenta Valley High School public 9-12 0.63 mi 10
Monte Vista Elementary School public K-6 0.66 mi 10
Palm Crest Elementary School public K-6 0.83 mi 10
Abraham Lincoln Elementary School public K-6 1.23 mi 10
John C. Fremont Elementary School public K-6 1.48 mi 8
Valley View Elementary School public K-6 1.59 mi 10
Anderson W. Clark Magnet High School public 9-12 1.65 mi 10
La Canada Elementary School public K-6 1.77 mi 10
Dunsmore Elementary School public K-6 1.92 mi 9
Paradise Canyon Elementary School public K-6 2.71 mi 10
Mountain View Elementary School public K-5 2.95 mi 6
Verdugo Woodlands Elementary School public K-6 3.30 mi 9
La Canada High School public 7-12 3.63 mi 9
Pinewood Avenue Elementary School public K-5 3.73 mi 7
College View School public K-12 3.89 mi N/A
Balboa Elementary School public K-6 4.18 mi 7
Herbert Hoover High School public 9-12 4.33 mi 7

Disclosures

©2026 California Regional MLS. All rights reserved. All data, including all measurements and calculations of area, is obtained from various sources and has not been, and will not be, verified by broker or MLS. All information should be independently reviewed and verified for accuracy. Properties may or may not be listed by the office/agent presenting the information. Information provided is for personal, non-commercial use by the viewer and may not be redistributed without explicit authorization from California Regional MLS.

Presently MLSListings.com displays Active, Contingent, Pending, and Recently Sold listings. Recently Sold listings are properties which were sold within the last three years. After that period listings are no longer displayed in MLSListings.com. Pending listings are properties under contract and no longer available for sale. Contingent listings are properties where there is an accepted offer, and seller may be seeking back-up offers. Active listings are available for sale.

This listing information is up-to-date as of February 03, 2026. For the most current information, please contact Vartan Ambarian.