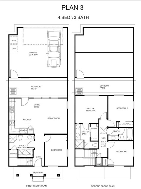
Welcome to 24711 6th Street, San Bernardino – a beautifully designed home built in 2021, offering modern comforts and stylish finishes. A gated, family-friendly, new home community in San Bernardino. This lovely contemporary home, is in close proximity to the 215 freeway, shops and schools. The home offers an open floor plan with a main level bedroom/Bonus Room, full bathroom and laundry room. Upstairs features additional 3 bedrooms and 2 full bathrooms. This home boasts of hardwood floors throughout the downstairs common areas and upstairs in all bedrooms. The kitchen has granite countertops and newer stainless-steel appliances. Home includes a private rear patio, extra large 2 Car garage, uncovered parking spaces. Experience the benefits of a well-maintained townhome community that requires minimal upkeep, ideal for those with busy schedules. Enhanced security and peace of mind come with gated access to the community. The home has been freshly painted and cleaned, making it move-in ready. The home is conveniently located to shopping, restaurants, hiking trails and freeways. Turnkey, truly must see. Standard Sale.
MLS #
CRCV26022711
MLS Source
California Regional MLS
Days on Site
26
Bedrooms
Ground Floor Bedroom
Bathrooms
Jack and Jill
Kitchen
Other, Pantry
Appliances
Dishwasher, Other
Dining Room
In Kitchen
Family Room
Other
Fireplace
None
Laundry
In Laundry Room
Cooling
Central Forced Air
Heating
Central Forced Air
Pool
None
Style
Spanish
Garage/Parking
Garage, Off-Site Parking, Garage: 2 Car(s)
Elementary District
San Bernardino City Unified
High School District
San Bernardino City Unified
HOA Fee
$199
HOA Fee Frequency
Monthly
Complex Amenities
Barbecue Area, Picnic Area, Playground
24711 6th is a Condominium in San Bernardino, CA 92410. This 1,352 square foot property sits on a 1,450 Sq Ft Lot and features 4 bedrooms & 3 full bathrooms. It is currently priced at $435,000 and was built in 2021. This address can also be written as 24711 6th, San Bernardino, CA 92410.
©2026 California Regional MLS. All rights reserved. All data, including all measurements and calculations of area, is obtained from various sources and has not been, and will not be, verified by broker or MLS. All information should be independently reviewed and verified for accuracy. Properties may or may not be listed by the office/agent presenting the information. Information provided is for personal, non-commercial use by the viewer and may not be redistributed without explicit authorization from California Regional MLS.
Presently MLSListings.com displays Active, Contingent, Pending, and Recently Sold listings. Recently Sold listings are properties which were sold within the last three years. After that period listings are no longer displayed in MLSListings.com. Pending listings are properties under contract and no longer available for sale. Contingent listings are properties where there is an accepted offer, and seller may be seeking back-up offers. Active listings are available for sale.
This listing information is up-to-date as of February 25, 2026. For the most current information, please contact George Cruz