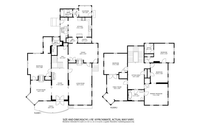
Step into a living legacy with "The Oaks," an extraordinary Southern California landmark that seamlessly marries meticulously restored Victorian grandeur with sophisticated farmhouse aesthetics. This rare offering presents a unique opportunity for stewardship, benefiting from a substantial property tax reduction of approximately 75%. Set behind a lush privacy hedge and finished entirely in rare, old-growth redwood, the residence unfolds across sixteen elegant rooms, many boasting soaring twelve-foot ceilings and five decorative fireplaces that anchor the home’s historic soul. Visitors are welcomed through double doors with frosted panes onto a magnificent veranda, leading into a grand entrance hall where a stately fireplace serves as a centerpiece for the formal sitting area. The main level is designed for both grand-scale entertaining and intimate living. An expansive living room flows effortlessly into a sun-drenched parlor, while the private dining room evokes a bygone era of elegance with its original china cabinet and integrated dumbwaiter. The service wing houses a modern culinary suite featuring a 48" Monogram stove, side-by-side refrigeration, and a spacious pantry, alongside an office and a dedicated service porch. For added convenience, the main floor includes a luxurio
MLS #
CRAR26035959
MLS Source
California Regional MLS
Days on Site
27
Bedrooms
Ground Floor Bedroom, Primary Suite/Retreat
Kitchen
Other
Appliances
Dishwasher, Hood Over Range, Microwave, Other, Oven - Double, Oven - Gas, Oven Range - Built-In, Oven Range - Gas, Refrigerator, Water Softener
Dining Room
Breakfast Nook, Formal Dining Room
Fireplace
Decorative Only
Laundry
Hookup - Gas Dryer, In Laundry Room
Cooling
Central Forced Air, Other
Heating
Central Forced Air, Forced Air
Roof
Composition
Foundation
Raised
Pool
None
Garage/Parking
Garage, Other, Garage: 2 Car(s)
Elementary District
Monrovia Unified
High School District
Monrovia Unified
Water
Other
HOA Fee
$0
Zoning
MORL*
250 N Primrose Ave is a Single Family Residence in Monrovia, CA 91016. This 4,681 square foot property sits on a 0.337 Acres Lot and features 5 bedrooms & 3 full bathrooms. It is currently priced at $2,199,950 and was built in 1885. This address can also be written as 250 N Primrose Ave, Monrovia, CA 91016.
©2026 California Regional MLS. All rights reserved. All data, including all measurements and calculations of area, is obtained from various sources and has not been, and will not be, verified by broker or MLS. All information should be independently reviewed and verified for accuracy. Properties may or may not be listed by the office/agent presenting the information. Information provided is for personal, non-commercial use by the viewer and may not be redistributed without explicit authorization from California Regional MLS.
Presently MLSListings.com displays Active, Contingent, Pending, and Recently Sold listings. Recently Sold listings are properties which were sold within the last three years. After that period listings are no longer displayed in MLSListings.com. Pending listings are properties under contract and no longer available for sale. Contingent listings are properties where there is an accepted offer, and seller may be seeking back-up offers. Active listings are available for sale.
This listing information is up-to-date as of March 07, 2026. For the most current information, please contact Amanda O'Dell