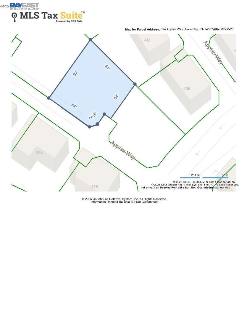
Build Your Dream Home – Rare Residential Lot Opportunity. Exceptional opportunity to purchase a 6,250 sq ft residential lot at 394 Appian Way in Union City. Vacant buildable parcels in established Bay Area neighborhoods are increasingly rare. This property offers the potential to design and build approximately a 2,800–4,000 sq ft custom residence (buyer to verify with city planning and zoning). Ideal opportunity for a builder, developer, investor, or owner-builder looking to create a new custom home in a desirable East Bay location. Imagine a thoughtfully designed residence featuring open-concept living spaces, modern architecture, and indoor-outdoor California living tailored to your lifestyle. Conveniently located near parks, shopping, schools, and major commuter routes serving Silicon Valley and the greater East Bay.
MLS #
BE41126535
MLS Source
Bay East
Days on Site
0
Development Status
None
Lot Description
Corners Marked - No, Other
Zoning
R-1
394 Appian Way is in Union City, CA 94587. This Land is currently priced at $549,000. This address can also be written as 394 Appian Way, Union City, CA 94587.
©2026 Bay East. All rights reserved. All data, including all measurements and calculations of area, is obtained from various sources and has not been, and will not be, verified by broker or MLS. All information should be independently reviewed and verified for accuracy. Properties may or may not be listed by the office/agent presenting the information. Information provided is for personal, non-commercial use by the viewer and may not be redistributed without explicit authorization from Bay East.
Presently MLSListings.com displays Active, Contingent, Pending, and Recently Sold listings. Recently Sold listings are properties which were sold within the last three years. After that period listings are no longer displayed in MLSListings.com. Pending listings are properties under contract and no longer available for sale. Contingent listings are properties where there is an accepted offer, and seller may be seeking back-up offers. Active listings are available for sale.
This listing information is up-to-date as of March 09, 2026. For the most current information, please contact Nashaba Rahman, (510) 290-5618