---
listing_id: BA326010402
status: Active
price: 826990
beds: 4
baths_full: 3
baths_half: 0
sqft_living: 2446
sqft_lot: 3608
lot_acres: 
year_built: 0
property_type: Residential
property_subtype: Single Family Residence
address: "132 Cartier St"
city: American Canyon
state: CA
zip: 94503
county: "Napa County"
lat: 38.183123
lng: -122.247027
days_on_market: 73
hoa_fee: 165
hoa_frequency: Monthly
garage_spaces: 2
list_agent: "Lisa Celestino"
list_office: "KB HOME Sales-Northern California Inc"
list_agent_phone: "(707) 720-6165"
list_agent_license: 01516500
mls_source: REBAREIS
modified: 2026-04-16
transaction_type: buy
---

Home | Napa County | American Canyon | 94503 | 132 Cartier St

132 Cartier St, American Canyon, CA 94503

MLS: BA326010402 | Status: Active | Price: $826,990
Beds/Baths: 4 / 3
Property Type: Residential

Quick Facts

Beds Baths Sq Ft Sq Ft Lot Yr Built
4 3 2,446 3,608 0

Remarks

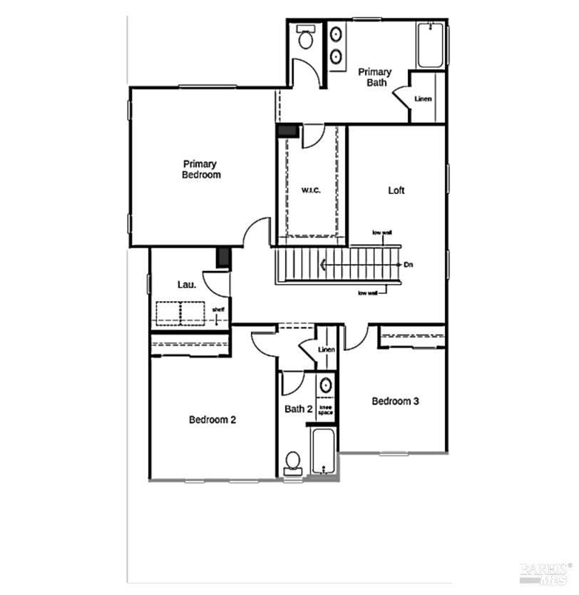
This ranch-style two-story home is Under Construction offering an open, thoughtfully designed layout with 9-ft. ceilings on the first floor and distinct dining and living areas ideal for everyday living and entertaining. A ground-level bedroom provides flexibility for guests or multigenerational living. The kitchen features a central island overlooking the living space along with a convenient butcher's pantry, creating a welcoming setting for gatherings. Upstairs, a versatile loft and a dedicated laundry room add everyday convenience. The primary suite includes a generous walk-in closet, while the primary bath features a dual vanity and a linen closet for added storage. Energy-efficient highlights include low-E windows, WaterSense® fixtures, a smart thermostat, an electric water heater, and a Whirlpool® appliance package. While construction is underway, enjoy the opportunity to personalize select design features such as cabinetry, countertops, flooring, and more. Located in Serrano at Watson Ranch, this thoughtfully planned community offers parks, scenic trails, a future town center, and a planned elementary school, with convenient access to Napa Valley Wine Country, outdoor recreation, dining, and major highways.

MLS Listing Information

Field Value
MLS # BA326010402
MLS Source Bay Area Real Estate Information Services, Inc.
Days on Site 73

Features

Interior Features

Feature Details
Laundry In Laundry Room
Cooling Central Forced Air
Heating Central Forced Air

Exterior Features

Feature Details
Pool Pool - No

Parking, School, and Other Information

Feature Details
Garage/Parking Attached Garage, Garage: 2 Car(s)
Sewer Public Sewer
Water Public
HOA Fee $165
HOA Fee Frequency Monthly
Complex Amenities None

Contact Information

Lisa Celestino
KB HOME Sales-Northern California Inc
License #: 01516500
Phone: (707) 720-6165

Property Units

# Buildings # Leased Units # Total Units
0

School Ratings

School data provided by GreatSchools.org

Nearby Schools

School Type Grades Distance Rating
American Canyon High School public 9-12 0.60 mi 8
Canyon Oaks Elementary School public K-5 1.05 mi 6
Donaldson Way Elementary School public K-5 1.24 mi 6
Napa Junction Elementary School public K-5 1.27 mi 8
American Canyon Middle School public 6-8 1.42 mi 6
Elsa Widenmann Elementary School public K-8 2.09 mi 2
Loma Vista Environmental Science Academy public K-8 2.24 mi 4
Dan Mini Elementary School public K-5 2.34 mi 4
Johnston Cooper Elementary School public K-5 3.90 mi 4
Federal Terrace Elementary School public K-6 4.34 mi 5
Vallejo High School public 9-12 4.77 mi 3
Highland Elementary School public K-6 4.80 mi 5
Vallejo Adult Transition public 12,AE 4.84 mi N/A
John Finney High (Continuation) School public 9-12 4.84 mi 1
Jesse M. Bethel High School public 9-12 4.94 mi 4
Joseph H. Wardlaw Elementary School public K-6 4.96 mi 5

Nearby Homes

Address Price Beds Baths Sq Ft Status
19 Kevin Ln $699,000 4 2/1 2,465 PendingDoNotShow
150 Hearthstone Dr $920,000 6 3 3,164 Active
128 Evelyn Cir $699,990 5 2/1 2,346 Active
10 via Marciana Unkn $719,000 3 2 2,233 Active
208 Frontier St $729,999 3 2/1 1,706 Active

Disclosures

©2026 Bay Area Real Estate Information Services, Inc. All rights reserved. All data, including all measurements and calculations of area, is obtained from various sources and has not been, and will not be, verified by broker or MLS. All information should be independently reviewed and verified for accuracy. Properties may or may not be listed by the office/agent presenting the information. Information provided is for personal, non-commercial use by the viewer and may not be redistributed without explicit authorization from Bay Area Real Estate Information Services, Inc.

Presently MLSListings.com displays Active, Contingent, Pending, and Recently Sold listings. Recently Sold listings are properties which were sold within the last three years. After that period listings are no longer displayed in MLSListings.com. Pending listings are properties under contract and no longer available for sale. Contingent listings are properties where there is an accepted offer, and seller may be seeking back-up offers. Active listings are available for sale.

This listing information is up-to-date as of April 16, 2026. For the most current information, please contact Lisa Celestino, (707) 720-6165.