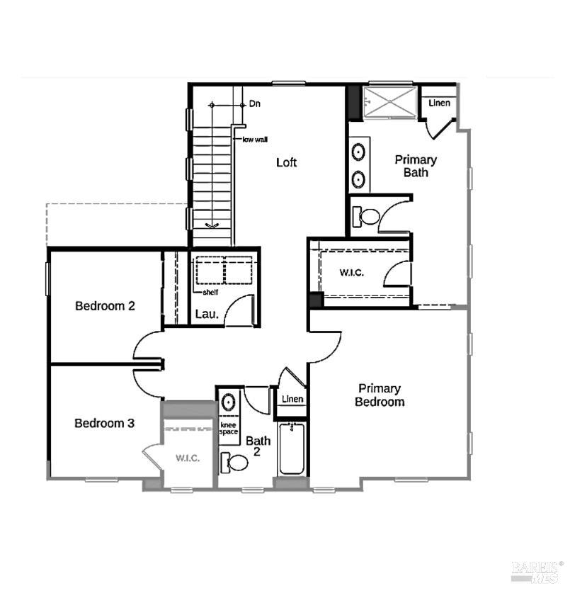
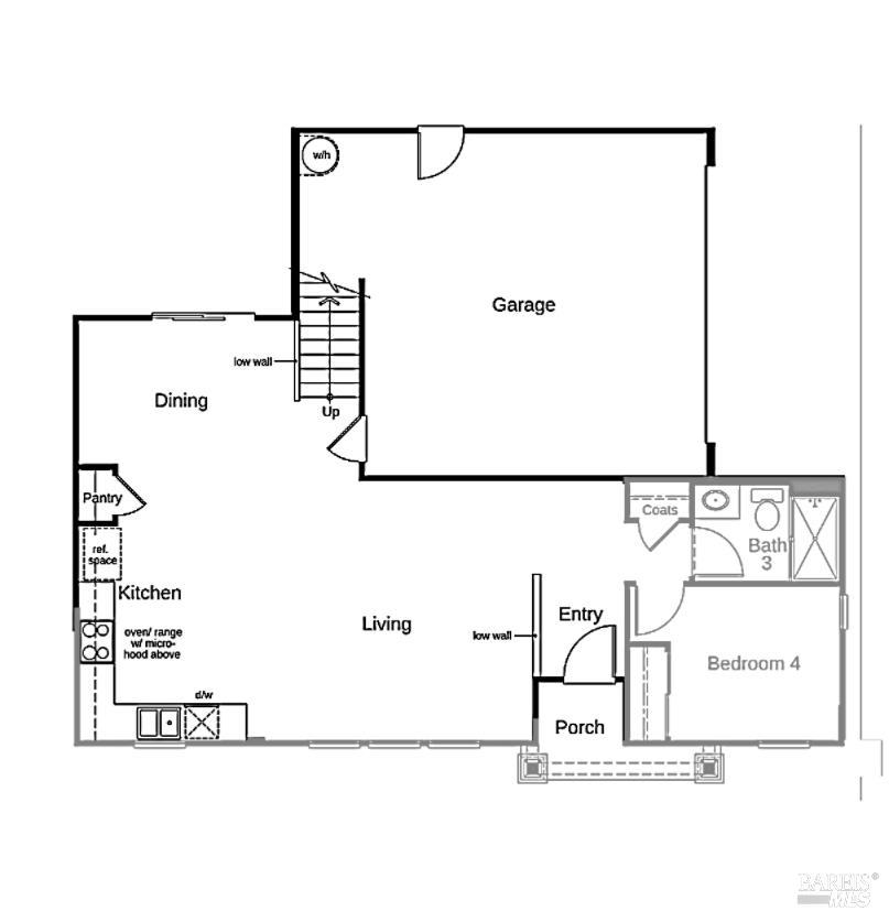
This beautiful two-story home is currently under construction and sits on a desirable corner homesite. Designed with 9-ft. ceilings and an open layout, the home offers a bright, airy living environment. The main level features a convenient bedroom, ideal for guests or multi-generational living. The kitchen is thoughtfully appointed with a central island, providing additional prep space and room for casual dining. Upstairs, enjoy a versatile loft, a dedicated laundry room, and a spacious primary suite complete with a generous walk-in closet. While construction is underway, you have the opportunity to personalize select design features including cabinetry, flooring, countertops, and more, with guidance from our professional interior design team. Located in the new Bayberry at Laurel Ranch community, this home offers an exceptional lifestyle with convenient access to Hwy. 4 and I-680. Concord and Pleasant Hill are just 14 minutes away, and The Streets of Brentwood is nearby for shopping, dining, and entertainment.
MLS #
BA326000675
MLS Source
Bay Area Real Estate Information Services, Inc.
Days on Site
3
Laundry
In Laundry Room
Cooling
Central Forced Air
Heating
Central Forced Air
Pool
Pool - No
Garage/Parking
Attached Garage, Garage: 2 Car(s)
Sewer
Public Sewer
Water
Public
HOA Fee
$220
HOA Fee Frequency
Monthly
Complex Amenities
Park
| # Buildings | # Leased Units | # Total Units |
|---|---|---|
| 0 | – | – |
4672 Copper Pl is a Single Family Residence in Antioch, CA 94531. This 2,030 square foot property sits on a 3,051 Sq Ft Lot and features 4 bedrooms & 3 full bathrooms. It is currently priced at $642,990 and was built in 0. This address can also be written as 4672 Copper Pl, Antioch, CA 94531.
©2026 Bay Area Real Estate Information Services, Inc. All rights reserved. All data, including all measurements and calculations of area, is obtained from various sources and has not been, and will not be, verified by broker or MLS. All information should be independently reviewed and verified for accuracy. Properties may or may not be listed by the office/agent presenting the information. Information provided is for personal, non-commercial use by the viewer and may not be redistributed without explicit authorization from Bay Area Real Estate Information Services, Inc.
Presently MLSListings.com displays Active, Contingent, Pending, and Recently Sold listings. Recently Sold listings are properties which were sold within the last three years. After that period listings are no longer displayed in MLSListings.com. Pending listings are properties under contract and no longer available for sale. Contingent listings are properties where there is an accepted offer, and seller may be seeking back-up offers. Active listings are available for sale.
This listing information is up-to-date as of January 07, 2026. For the most current information, please contact Daniel Zwicker, (510) 719-4321